N.B. Tutti le informazioni immobiliari sono fornite senza alcuna garanzia. Leggi il disclaimer.
Locali di sgombero o terreni edificabili con cantina in vendita a Budoni in zona San Lorenzo
MODIFICA QUESTA RICERCATerreno edificabile in Vendita a Budoni Via San Lorenzo PREMIUM
Villa in vendita a San Lorenzo di Moriano - Lucca
Proposto da:
locale di sgombero San Lorenzo 570.000 €
CO- ESCLUSIVA - Rif. IA1805 - L' Agenzia Immobiliare Marchini propone in vendita Villa con adiacente Capannone di 500 mq e terreno di 4000 mq, situata nella splendida campagna lucchese. La villa si sviluppa al piano primo, raggiungibile mediante comoda scala esterna che porta al terrazzo di ingresso ove […]
LEGGI ANCORA
- prezzo medio casa indipendente in zona San Lorenzo : 2049 €/m²
- prezzo medio villa in zona San Lorenzo : 2244 €/m²
Terreno edificabile in vendita a Budoni
terreno edificabile Tamarispa
Terreno agricolo panoramico a Budoni – Tamarispa Nel cuore delle colline di Tamarispa, in un contesto di assoluta quiete e riservatezza, si estende questo prestigioso terreno agricolo di 36.262 mq, inserito in uno degli scenari più suggestivi del territorio di Budoni. La proprietà gode di una posizione d […]
LEGGI ANCORA
Capannone industriale in vendita a San Lorenzo di Moriano - Lucca
Proposto da:
locale di sgombero San Lorenzo 570.000 €
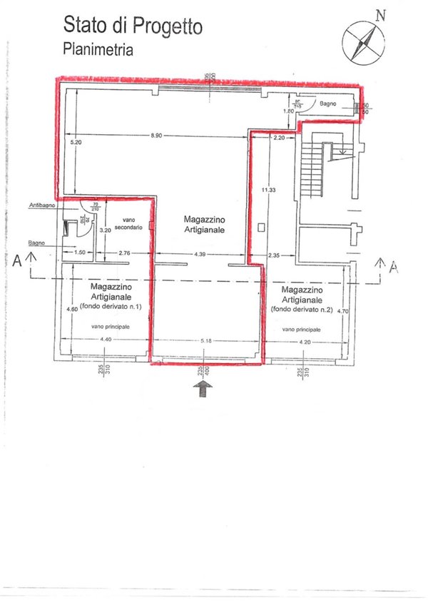
Rif. GE1030 - L' Agenzia Immobiliare Marchini propone in vendita in co-esclusiva, Capannone industriale con adiacente Abitazione di Proprietà e Terreno. Il capannone, attualmente locato come magazzino, si compone di un ampio vano collegato ad altri tre vani, due bagni con antibagno e ampia tettoia per ca […]
LEGGI ANCORA
- prezzo medio appartamento in zona San Lorenzo : 2088 €/m²
- prezzo medio casa indipendente in zona San Lorenzo : 2049 €/m²
Terreno edificabile in vendita a Budoni
terreno edificabile Tamarispa
Budoni- Tamarispa Terreno edificabile | 36.262 mq | fabbricato | vigneto Proponiamo in vendita terreno agricolo di 36.262 mq, con possibilità di edificazione tramite miglioramento fondiario. Situato in posizione tranquilla e panoramica, con vista sul mare e sulle colline, a soli 7 km dal mare (circa 9 mi […]
LEGGI ANCORA
Terreno in vendita a Budoni(SS
villa in vendita a Budoni in zona San Lorenzo PREMIUM
Terreno residenziale in vendita in Località Giustinu, snc a Budoni
terreno edificabile Tamarispa
Budoni- Tamarispa Terreno edificabile | 36.262 mq | fabbricato | vigneto Proponiamo in vendita terreno agricolo di 36.262 mq, con possibilità di edificazione tramite miglioramento fondiario. Situato in posizione tranquilla e panoramica, con vista sul mare e sulle colline, a soli 7 km dal mare (circa 9 mi […]
LEGGI ANCORA
Terreno residenziale in vendita in Località Giustinu, snc a Budoni
terreno edificabile Tamarispa
Budoni- Tamarispa Terreno edificabile | 36.262 mq | fabbricato | vigneto Proponiamo in vendita terreno agricolo di 36.262 mq, con possibilità di edificazione tramite miglioramento fondiario. Situato in posizione tranquilla e panoramica, con vista sul mare e sulle colline, a soli 7 km dal mare (circa 9 mi […]
LEGGI ANCORA
Terreno Residenziale - Budoni . Rif.: Cod. rif 3261193VRG
terreno edificabile Tamarispa
Budoni- Tamarispa Terreno edificabile | 36.262 mq | fabbricato | vigneto Proponiamo in vendita terreno agricolo di 36.262 mq, con possibilit di edificazione tramite miglioramento fondiario. Situato in posizione tranquilla e panoramica, con vista sul mare e sulle colline, a soli 7 km dal mare (circa 9 min […]
LEGGI ANCORA
terreno agricolo in vendita a Budoni in zona Tamarispa
terreno edificabile Tamarispa
Budoni- Tamarispa Terreno edificabile | 36.262 mq | fabbricato | vigneto Proponiamo in vendita terreno agricolo di 36.262 mq, con possibilità di edificazione tramite miglioramento fondiario. Situato in posizione tranquilla e panoramica, con vista sul mare e sulle colline, a soli 7 km dal mare (circa 9 […]
LEGGI ANCORA
RUSTICO DA RISTRUTTURARE -BUDONI SAN LORENZO
terreno edificabile San Lorenzo
Da Privato. Casa indipendente con annesso terreno , interamente da ristrutturare .La superficie complessiva del lotto e di 1064 mq e la volumetria esistente e pari a 1199 mc .Lo stabile si trova a pochi km da Budoni notissima località turistica della costa nord-orientale sarda a 38 km da Olbia. Ottimo in […]
LEGGI ANCORA
Villa in vendita a Budoni PREMIUM
Villa FABILU – Villa di Lusso con Vista Mare e Piscina Interna ed Esterna Riscaldate – Budoni Centro Nel cuore di Budoni, in una delle zone più residenziali ed esclusive del paese, sorge Villa FABILU, una villa di lusso di nuova costruzione […]
LEGGI ANCORA
- prezzo medio casa indipendente in zona OMI B1 : 3935 €/m²
- prezzo medio villa in zona OMI B1 : 4009 €/m²
Terreno agricolo in vendita a Budoni
terreno edificabile Tamarispa
Terreno agricolo panoramico a Budoni – Tamarispa Nel cuore delle colline di Tamarispa, in un contesto di assoluta quiete e riservatezza, si estende questo prestigioso terreno agricolo di 36.262 mq, inserito in uno degli scenari più suggestivi del territorio di Budoni. La proprietà gode di una posizione d […]
LEGGI ANCORA
Terreno edificabile in vendita a Budoni
terreno edificabile San Lorenzo 49.000 €
Budoni | San Lorenzo | Terreno edificabile In zona residenziale tranquilla e collinare, a pochi minuti dal centro di Budoni, proponiamo in vendita un terreno edificabile di 670 mq. San Lorenzo una suggestiva frazione di Budoni, situata a circa 5 km dal centro di Budoni e a meno di 10 minuti di auto dalle […]
LEGGI ANCORA
Terreno edificabile in Vendita a Budoni
terreno edificabile San Lorenzo 70.000 €
Budoni | San Lorenzo | Terreno edificabile Situato in posiziona collinare, proponiamo in vendita terreno edificabile di 1000 mt. San Lorenzo dista pochi chilometri dal mare e dalle meravigliose spiagge della costa. Volumi autorizzati con concessione edilizia: 875 mqPossibilità di edificazione con proget […]
LEGGI ANCORA
Vendita Terreno edificabile Budoni (OT
terreno edificabile San Lorenzo 65.000 €
Budoni | San Lorenzo | Terreno edificabile <br><br>Situato in posiziona collinare, proponiamo in vendita terreno edificabile di 1000 mt. <br>San Lorenzo dista pochi chilometri dal mare e dalle meravigliose spiagge della costa. <br><br>Volumi autorizzati con concessione edilizia: 875 mq<br>Possibilità di […]
LEGGI ANCORA
Terreno edificabile in Vendita a Budoni Via San Lorenzo
terreno edificabile San Lorenzo 247.000 €
Budoni | San Lorenzo | Terreno edificabile con progetto approvato In località San Lorenzo, a pochi minuti da Budoni e dalle splendide spiagge della costa orientale sarda, proponiamo in vendita un terreno edificabile già lottizzato, situato in zona urbanistica C, all interno di un contesto residenziale […]
LEGGI ANCORA
Terreno edificabile in Vendita a Budoni Via San Lorenzo PREMIUM
Magazzino di 813 mq a San Lorenzo Isontino
terreno edificabile San Lorenzo 55.000 €
San Lorenzo isontino, zona centrale, terreno edificabile con destinazione residenziale di circa 813 mq sul quale insiste un fabbricato di circa 85 mq adibito a deposito e ripostiglio con possibilità di ampliamento fino a 210 mq. Il terreno è recintato su tutti quattro i lati, visto il contesto in cui è u […]
LEGGI ANCORA
Vendita Magazzino, BORGO SAN LORENZO
locale di sgombero San Lorenzo 105.000 €
BORGO SAN LORENZO, pressi P.zza Dante, proponiamo in vendita locale ad uso magazzino, ottimo stato, molto luminoso, grande apertura su strada, MQ 100 con servizio finestrato. Attualmento locato ad Euro 550,00 mese. Ideale per investimento
LEGGI ANCORA
Magazzino di 813 mq a San Lorenzo Isontino
terreno edificabile San Lorenzo 55.000 €
San Lorenzo isontino, zona centrale, terreno edificabile con destinazione residenziale di circa 813 mq sul quale insiste un fabbricato di circa 85 mq adibito a deposito e ripostiglio con possibilità di ampliamento fino a 210 mq. Il terreno è recintato su tutti quattro i lati, visto il contesto in cui è u […]
LEGGI ANCORA
Non perdere gli altri 23 annunci!













