Valutazione immobiliare indipendente, accurata e gratuita
L'Opinione di Caasa® per la casa indipendente in vendita a San Vito a 215.000 € (cod.652dc3eb)
Secondo Caasa, per la casa indipendente in vendita a San Vito, la richiesta di 215.000 € è leggermente vantaggiosa rispetto agli annunci simili.
Analisi immobiliare
La casa indipendente è proposta in vendita (da RISPOSTE IMMOBILIARI) a
215.000 € per una
superficie commerciale di
356 m² e quindi ad un prezzo per metro quadrato pari a
603 €/m²
.
Tale valore
è un po' più basso di quello stimato da Caasa per immobili in vendita simili per tipologia e caratteristiche, che è compreso tra
763 €/m² e
941 €/m².
E' stato possibile utilizzare come raffronto i soli valori medi cittadini per case indipendenti (da 620 €/m² a 1.540 €/m²) e per case semindipendenti (da 490 €/m² a 1.335 €/m²). Caasa non è stata infatti in grado di determinare in modo affidabile la posizione né la classe energetica dell'immobile. Ad affinare la stima hanno contribuito però anche lo stato dell'immobile (da ristrutturare) e la presenza di alcune caratteristiche significative come la disponibilità di una cantina. Per questi motivi i valori considerati accettabili per l'offerta economica devono costituire un intervallo adeguatamente ampio.
Mercato immobiliare a San Vito
Per quanto riguarda più in generale il comune di San Vito, sono presenti al momento più di cinquanta annunci per
case indipendenti in vendita (meno del 5% dell'intera provincia) .
La dinamica dei prezzi in tutto il comune mostra che negli ultimi 6 mesi, i prezzi per case indipendenti in vendita sono
in deciso aumento (+7,90%).
NOVITÀ Il risultato che vedi dipende dai dati che siamo riusciti ad estrarre dall'annuncio: ottieni una stima più accuranta di questo immobile, inserendo dati più precisi.
N.B. L'Opinione di Caasa® è un servizio sperimentale realizzato tramite tecniche di Intelligenza Artificiale, fornito senza alcuna garanzia di correttezza e completezza. Leggi il disclaimer o segnalaci un problema.
IMMAGINI
IN SINTESI
DESCRIZIONE
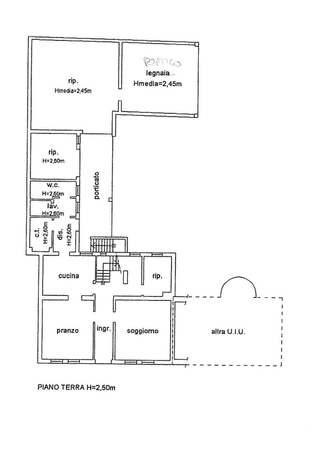
da ristrutturare con giardino con terrazza da ristrutturare con cantina con termocondizionamento con cucina abitabile con riscaldamento autonomo
In un suggestivo borgo del paese, proponiamo in vendita una casa accostata dalle generose metrature, sviluppata su tre livelli più piano interrato. Una soluzione ideale per chi cerca spazi ampi e la possibilità di personalizzare ogni ambiente secondo […]
