Valutazione immobiliare indipendente, accurata e gratuita
Terreno agricolo in vendita a Castiadas a 65.000 € (cod.64ddaf60)
Caasa non ha sufficienti informazioni per commentare il terreno agricolo in vendita a Castiadas - 64ddaf60.
	Analisi immobiliare
	
	I dati in posseso di Caasa per quest'immobile sono insufficienti, inaffidabili o contraddittori per proporre un'analisi attendibile.
	
	Mercato immobiliare a Castiadas
	
	Per quanto riguarda più in generale il comune di Castiadas, sono presenti al momento più di venti annunci per 
		terreni agricoli in vendita (meno del 5% dell'intera provincia) .
	
	
	
	Vedi altre informazioni direttamente su 
		Mercato-Immobiliare.info
		
	
NOVITÀ Il risultato che vedi dipende dai dati che siamo riusciti ad estrarre dall'annuncio: ottieni una stima più accuranta di questo immobile, inserendo dati più precisi.
N.B. L'Opinione di Caasa® è un servizio sperimentale realizzato tramite tecniche di Intelligenza Artificiale, fornito senza alcuna garanzia di correttezza e completezza. Leggi il disclaimer o segnalaci un problema.
IMMAGINI
IN SINTESI
DESCRIZIONE
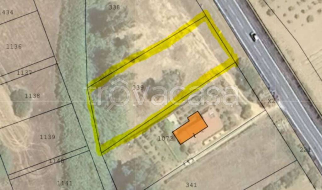
Rif: 31/25 - In vendita a Castiadas lotto edificabile di 1.541 mq, ricadente in sottozona F2n del PUC con destinazione turistico-ricettiva e turistico-residenziale. L’area consente la realizzazione fino a circa 616 mc edificabili, con possibilità di sviluppare residenze turistiche o una struttura ricettiva completa di servizi (ristorazione, commercio, uffici, aree verdi attrezzate). Grazie ai parametri urbanistici favorevoli, il terreno rappresenta una vera opportunità di investimento per imprese, investitori o privati che desiderano sviluppare un progetto in uno dei contesti più apprezzati del turismo sardo. Punti chiave: Superficie lotto: 1.541 mq Volume edificabile: circa 616 mc Destinazioni ammesse: residenze turistiche, alberghi, villaggi-albergo, residenze turistico-alberghiere, campeggi, servizi turistici Altezza max edifici: 6 m residenziale – 7 m ricettivo Rapporto di copertura: 30% (residenze) – 40% (ricettivo) Zona urbanistica: F2n – turistico-ricettiva e turistico-residenziale Un’occasione ideale per chi vuole investire nel turismo in Sardegna, in un’area ad alto potenziale di sviluppo e valorizzazione
                        
                              
                              
                              
