Valutazione immobiliare indipendente, accurata e gratuita
Casa indipendente a Trinità d'Agultu e Vignola in zona Isola Rossa a 665.000 € (cod.64f987f9)
Caasa non ha sufficienti informazioni per commentare la casa indipendente in vendita in zona Isola Rossa - 64f987f9.
Analisi immobiliare
I dati in posseso di Caasa per quest'immobile sono insufficienti, inaffidabili o contraddittori per proporre un'analisi attendibile.
Mercato immobiliare a Trinità d'Agultu e Vignola
Per quanto riguarda più in generale il comune di Trinità d'Agultu e Vignola, sono presenti al momento quasi 500 annunci per
case indipendenti in vendita (meno del 10% dell'intera provincia)
e il maggior numero di annunci per questa tipologia sono relativi alla zona di Costa Paradiso, mentre la zona di Isola Rossa risulta molto meno attiva considerando il numero di annunci presenti.
La richiesta media nella zona dove sorge la casa indipendente (Isola Rossa) è pari a
3.535 €/m² e ne fa la più pregiata del comune .
Relativamente alla dinamica dei prezzi, possiamo dire che negli ultimi 6 mesi i prezzi medi in tutto il comune per case indipendenti in vendita sono
sostanzialmente stabili (+0,33%).
NOVITÀ Il risultato che vedi dipende dai dati che siamo riusciti ad estrarre dall'annuncio: ottieni una stima più accuranta di questo immobile, inserendo dati più precisi.
N.B. L'Opinione di Caasa® è un servizio sperimentale realizzato tramite tecniche di Intelligenza Artificiale, fornito senza alcuna garanzia di correttezza e completezza. Leggi il disclaimer o segnalaci un problema.
IMMAGINI
IN SINTESI
PROPOSTO DA:
SAMA IMMOBILIARE SRL
DESCRIZIONE
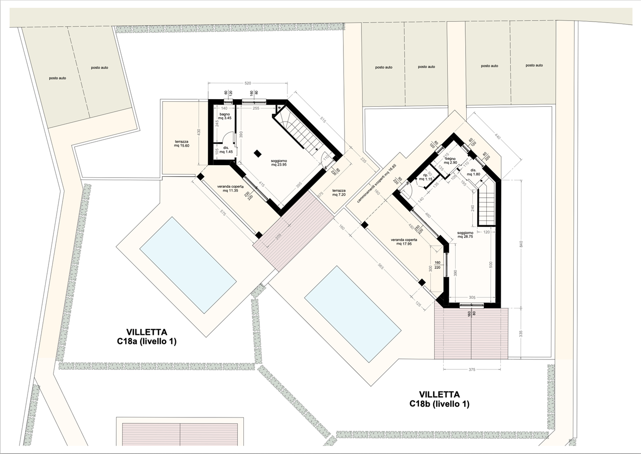
con posto auto con giardino con angolo cottura con termocondizionamento con balcone
Il Borgo dell'Isola C18b Villa bifamiliare disposta su 2 livelli con due camere con splendida vista mare, cosi composta: Ampio ingresso e luminosa zona giorno Soggiorno con angolo cottura 2 camere matrimoniali 3 bagni Ampia veranda vista mare Arioso giardino privato Posto auto Possibilità di realizzare una piscina Il progetto sorge nella rinomata località turistica di Isola Rossa nel comune di Trinità d'Agultu e Vignola ed è inserito in un ambito residenziale collocato a distanza pedonale dalle spiagge e dal mare, già dotata di tutti i servizi primari e ottimamente collegato al centro abitato del borgo turistico. Il complesso prevede la realizzazione di Villette sia unifamiliari che suddivise in piccole unità abitative. Ogni villa avrà il suo terreno di proprietà regalando all'abitazione privacy e spazi esterni con possibilità anche di avere una piscina. Le ville sono costruite secondo l'architettura locale utilizzando materiali di pregio al fine di rivolgersi ad una clientela più raffinata ed esigente. Tutte le ville sono dotate di confort e personalizzabili. Le abitazioni vengono costruite ad alta efficienza energetica, in classe A, ove l'isolamento termico è garantito da pareti di NORMABLOK a taglio termico, da tetti isolati realizzati con travi di legno bianco spazzolato a vista e da infissi e serramenti in alluminio a taglio termico. Le nostre soluzioni vantano stipiti esterni e colonnati arricchiti in granito sardo. Ognuna di esse è predisposta per l'installazione di climatizzazione estiva e riscaldamento invernale a pompa di calore di tipo autonomo. LE FOTO DELL'ANNUNCIO SONO PURAMENTE INDICATIVE. CLASSE ENERGETICA: A

