Valutazione immobiliare indipendente, accurata e gratuita
Casa indipendente a Trinità d'Agultu e Vignola in zona Isola Rossa a 610.000 € (cod.64f9850b)
Caasa non ha sufficienti informazioni per commentare la casa indipendente in vendita in zona Isola Rossa - 64f9850b.
Analisi immobiliare
I dati in posseso di Caasa per quest'immobile sono insufficienti, inaffidabili o contraddittori per proporre un'analisi attendibile.
Mercato immobiliare a Trinità d'Agultu e Vignola
Per quanto riguarda più in generale il comune di Trinità d'Agultu e Vignola, sono presenti al momento quasi 500 annunci per
case indipendenti in vendita (meno del 10% dell'intera provincia)
e il maggior numero di annunci per questa tipologia sono relativi alla zona di Costa Paradiso, mentre la zona di Isola Rossa risulta molto meno attiva considerando il numero di annunci presenti.
La richiesta media nella zona dove sorge la casa indipendente (Isola Rossa) è pari a
3.575 €/m² e ne fa la più pregiata del comune .
La dinamica dei prezzi in tutto il comune mostra che negli ultimi 6 mesi, i prezzi per case indipendenti in vendita sono
sostanzialmente stabili (+0,33%).
NOVITÀ Il risultato che vedi dipende dai dati che siamo riusciti ad estrarre dall'annuncio: ottieni una stima più accuranta di questo immobile, inserendo dati più precisi.
N.B. L'Opinione di Caasa® è un servizio sperimentale realizzato tramite tecniche di Intelligenza Artificiale, fornito senza alcuna garanzia di correttezza e completezza. Leggi il disclaimer o segnalaci un problema.
IMMAGINI
IN SINTESI
PROPOSTO DA:
SAMA IMMOBILIARE SRL
DESCRIZIONE
con posto auto con giardino con angolo cottura con garage con termocondizionamento con balcone con riscaldamento autonomo con cucina abitabile
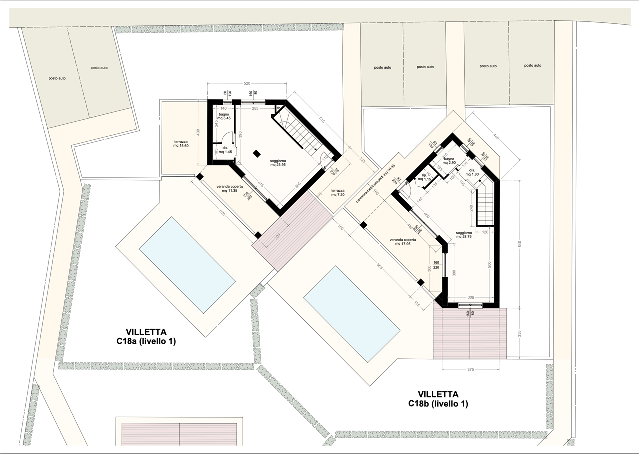
C 18a Villa situata in posizione privilegiata all'interno della lottizzazione libera su 3 lati e con giardino privato di circa 180 mq. La villa è composta: Livello 1: zona giorno con grande apertura verso il mare e ampia veranda zona pranzo e angolo cottura Livello 0: 2 camere matrimoniali con bagno ensuite doppio posto auto privato possibilità di costruire la piscina ampio giardino Il progetto sorge nella rinomata località turistica di Isola Rossa nel comune di Trinità d'Agultu e Vignola ed è inserito in un ambito residenziale collocato a distanza pedonale dalle spiagge e dal mare, già dotata di tutti i servizi primari e ottimamente collegato al centro abitato del borgo turistico.âEURO Il complesso prevede la realizzazione di Villette sia unifamiliari che suddivise in piccole unità abitative. Ogni villa avrà il suo terreno di proprietà regalando all'abitazione privacy e spazi esterni con possibilità anche di avere una piscina. Le ville sono costruite secondo l'architettura locale utilizzando materiali di pregio al fine di rivolgersi ad una clientela più raffinata ed esigente. Tutte le ville sono dotate di confort e personalizzabili. Le abitazioni vengono costruite ad alta efficienza energetica, in classe A, ove l'isolamento termico è garantito da pareti di NORMABLOK a taglio termico, da tetti isolati realizzati con travi di legno bianco spazzolato a vista e da infissi e serramenti in alluminio a taglio termico. Le nostre soluzioni vantano stipiti esterni e colonnati arricchiti in granito sardo. Ognuna di esse è predisposta per l'installazione di climatizzazione estiva e riscaldamento invernale a pompa di calore di tipo autonomo. LE FOTO DELL'ANNUNCIO SONO PURAMENTE INDICATIVE. CLASSE ENERGETICA: A


