Valutazione immobiliare indipendente, accurata e gratuita
Casa indipendente in vendita a Porto Torres a 90.000 € (cod.652ae2b9)
Caasa non ha sufficienti informazioni per commentare la casa indipendente in vendita a Porto Torres - 652ae2b9.
Analisi immobiliare
I dati in posseso di Caasa per quest'immobile sono insufficienti, inaffidabili o contraddittori per proporre un'analisi attendibile.
Mercato immobiliare a Porto Torres
Per quanto riguarda più in generale la città di Porto Torres, sono presenti al momento più di cento annunci per
case indipendenti in vendita (meno del 5% dell'intera provincia) .
Relativamente alla dinamica dei prezzi, possiamo dire che negli ultimi 6 mesi i prezzi medi in tutta la città per case indipendenti in vendita sono
in sostanziale aumento (+6,80%).
NOVITÀ Il risultato che vedi dipende dai dati che siamo riusciti ad estrarre dall'annuncio: ottieni una stima più accuranta di questo immobile, inserendo dati più precisi.
N.B. L'Opinione di Caasa® è un servizio sperimentale realizzato tramite tecniche di Intelligenza Artificiale, fornito senza alcuna garanzia di correttezza e completezza. Leggi il disclaimer o segnalaci un problema.
IMMAGINI
IN SINTESI
PROPOSTO DA:
Affiliato Tecnocasa - Studio Porto Torres Srl
Corso vittorio emanuele 60, Porto Torres (SS)
DESCRIZIONE
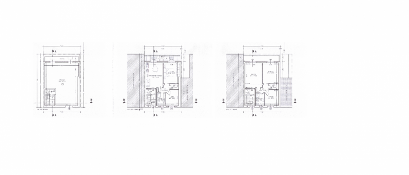
da ristrutturare con cantina con cortile senza ascensore da ristrutturare
Zona Centrale - Fabbricato Diritto da Ristrutturare | Ottimo Investimento In posizione centrale, proponiamo in vendita fabbricato diritto, ideale come investimento o per la realizzazione di un'abitazione indipendente. Come da progetto di massima (vedi prospetto in foto), l'immobile offre la possibilità di essere sviluppato su tre livelli così composti: Cantina al piano seminterrato Piano terra con cucina, soggiorno, cortile interno e locale deposito Piano primo con camera da letto, cameretta, bagno e veranda La posizione strategica, unita alla versatilità degli spazi, rende la soluzione particolarmente interessante per uso residenziale o per operazioni a reddito. Prezzo richiesto: € 90.000 Ulteriori informazioni disponibili in agenzia. Visite previo appuntamento




