Valutazione immobiliare indipendente, accurata e gratuita
Appartamento in vendita ad Olbia in zona Vittorio Veneto a 192.000 € (cod.651ede7a)
Caasa non ha sufficienti informazioni per commentare l'appartamento ad Olbia in zona Vittorio Veneto - 651ede7a.
Analisi immobiliare
I dati in posseso di Caasa per quest'immobile sono insufficienti, inaffidabili o contraddittori per proporre un'analisi attendibile.
Mercato immobiliare ad Olbia
Per quanto riguarda più in generale la città di Olbia, sono presenti al momento ben oltre mille annunci per
appartamenti in vendita (quasi il 20% dell'intera provincia)
e il maggior numero di annunci per questa tipologia sono relativi alla zona di Porto Rotondo, mentre la zona di Vittorio Veneto risulta molto meno attiva considerando il numero di annunci presenti.
La richiesta media nella zona dove sorge l'appartamento (Vittorio Veneto pressi corso Vittorio Veneto) è pari a
2.245 €/m², di poco superiore al valore della zona Bandinu che è la più economica della città .
Possiamo inoltre considerare che in tutta la città negli ultimi 6 mesi, i prezzi per appartamenti in vendita sono
in deciso aumento (+9,27%).
NOVITÀ Il risultato che vedi dipende dai dati che siamo riusciti ad estrarre dall'annuncio: ottieni una stima più accuranta di questo immobile, inserendo dati più precisi.
N.B. L'Opinione di Caasa® è un servizio sperimentale realizzato tramite tecniche di Intelligenza Artificiale, fornito senza alcuna garanzia di correttezza e completezza. Leggi il disclaimer o segnalaci un problema.
IMMAGINI
IN SINTESI
DESCRIZIONE
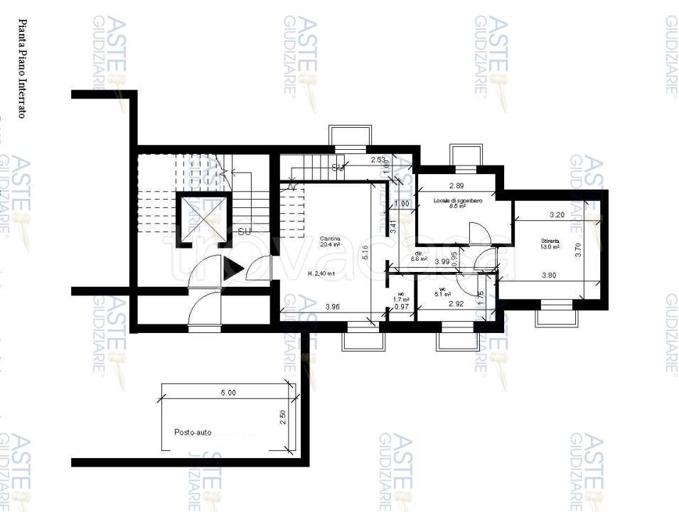
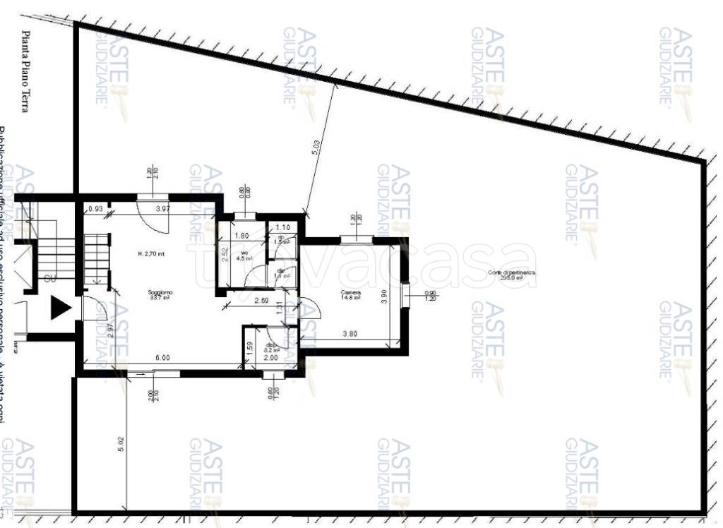
di recente costruzione con giardino con posto auto in asta giudiziaria con cantina di recente costruzione
Vendesi in asta giudiziaria, appartamento su DUE LIVELLI, con AMPO GIARDINO e POSTO AUTO, situato in Corso Vittorio Veneto 114, nel Residence " Le Residenze di Via veneto", in una zona centrale e ben servita di Olbia. La stazione ferroviaria principale è raggiungibile in 25 minuti a piedi, mentre i servizi urbani e il centro storico restano comodamente a portata di mano. VALORE DI PERIZIA - STIMA DI MERCATO € 320.000 La soluzione è in buono stato, si sviluppa su una superficie di 113 mq su DUE LIVELLI, così composta: * PIANO TERRA: soggiorno-pranzo, disimpegno, camera, bagno, ripostiglio e dispensa. * PIANO SOTTERRANEO: disimpegno, cantina, locale di sgombero, 2 bagni e stireria. Completano la soluzione un AMPIO GIARDINO di 295 mq e un POSTO AUTO nel sotterraneo. OTTIMO RAPPORTO €/mq considerando le quotazioni della zona. Il prezzo a cui ci si riferisce è l’OFFERTA MINIMA da presentare per partecipare. CONTATTACI AL N.375.785.21.70 PER FISSARE UN APPUNTAMENTO PRESSO LA NOSTRA SEDE DI CAGLIARI. Siamo anche disponibili presso le nostre sedi di BARI, LECCE, TARANTO, LIVORNO, FIRENZE, BRESCIA E MILANO. I dati inseriti sono stati estratti dalla perizia e dell'avviso di vendita. Per visionare le FOTO INTERNE e avere MAGGIORI INFORMAZIONI sull’immobile, prego contattare telefonicamente per fissare un APPUNTAMENTO nelle nostre sedi. Il team di AVVOCATI e PROFESSIONISTI IMMOBILIARI di Valore Aggiunto Consulting sarà lieto di spiegarvi i vantaggi di questa ed altre opportunità presenti, offrendovi il servizio più completo sul mercato, prevenendo ogni problema. Infatti, ci occuperemo di: •Effettuare uno STUDIO APPROFONDITO della perizia e degli altri documenti della procedura •Organizzare per voi il SOPRALLUOGO sull’immobile •Pianificare e redigere l’OFFERTA DI ACQUISTO (anche per procedure telematiche) •Consigliarvi le MIGLIORI STRATEGIE per avere successo in sede di gara •Vi indichiamo convenzioni per il MUTUO •Vi supportiamo nelle scelte di intestazione della proprietà •Vi assistiamo nella LIBERAZIONE dell'immobi[…]

