Valutazione immobiliare indipendente, accurata e gratuita
Casa indipendente in vendita a Budoni in zona San Silvestro a 56.000 € (cod.64fc27d7)
Caasa non ha sufficienti informazioni per commentare la casa indipendente a Budoni in zona San Silvestro - 64fc27d7.
Analisi immobiliare
I dati in posseso di Caasa per quest'immobile sono insufficienti, inaffidabili o contraddittori per proporre un'analisi attendibile.
Mercato immobiliare a Budoni
Per quanto riguarda più in generale il comune di Budoni, sono presenti al momento quasi 500 annunci per
case indipendenti in vendita (meno del 10% dell'intera provincia)
e il maggior numero di annunci per questa tipologia sono relativi alla zona di San Lorenzo, mentre la zona di San Silvestro risulta molto meno attiva considerando il numero di annunci presenti.
La richiesta media nella zona dove sorge la casa indipendente (San Silvestro) è pari a
2.090 €/m², di poco superiore al valore della zona San Gavino che è la più economica del comune .
La dinamica dei prezzi in tutto il comune mostra che negli ultimi 6 mesi, i prezzi per case indipendenti in vendita sono
in sostanziale aumento (+5,65%).
NOVITÀ Il risultato che vedi dipende dai dati che siamo riusciti ad estrarre dall'annuncio: ottieni una stima più accuranta di questo immobile, inserendo dati più precisi.
N.B. L'Opinione di Caasa® è un servizio sperimentale realizzato tramite tecniche di Intelligenza Artificiale, fornito senza alcuna garanzia di correttezza e completezza. Leggi il disclaimer o segnalaci un problema.
IMMAGINI
IN SINTESI
PROPOSTO DA:
SPAZIO REAL ESTATE SRL
DESCRIZIONE
di recente costruzione con terrazza con termocondizionamento con angolo cottura con riscaldamento autonomo con balcone di recente costruzione con caminetto
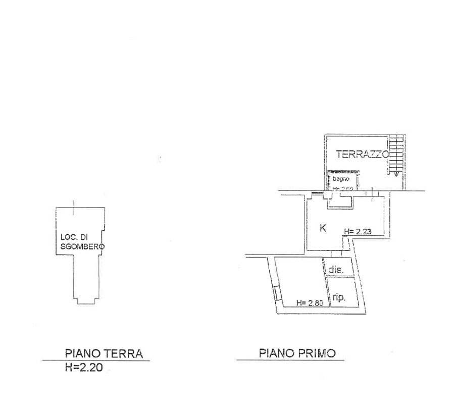
Pescara zona San Silvestro, Strada Fonte Locca, casa indipendente. In zona residenziale, graziosa soluzione cielo-terra con ingresso indipendente, perfetto per chi cerca comfort e privacy. L’ingresso all’abitazione avviene tramite una scala esterna c […]
