Valutazione immobiliare indipendente, accurata e gratuita
L'Opinione di Caasa® per l'appartamento in vendita a Torpè a 120.000 € (cod.652e4fc2)
Secondo Caasa, per l'appartamento in vendita a Torpè, la richiesta di 120.000 € è equilibrata rispetto agli annunci simili.
Analisi immobiliare
L'appartamento, situato nella zona OMI B1, è proposto in vendita a
120.000 € per una
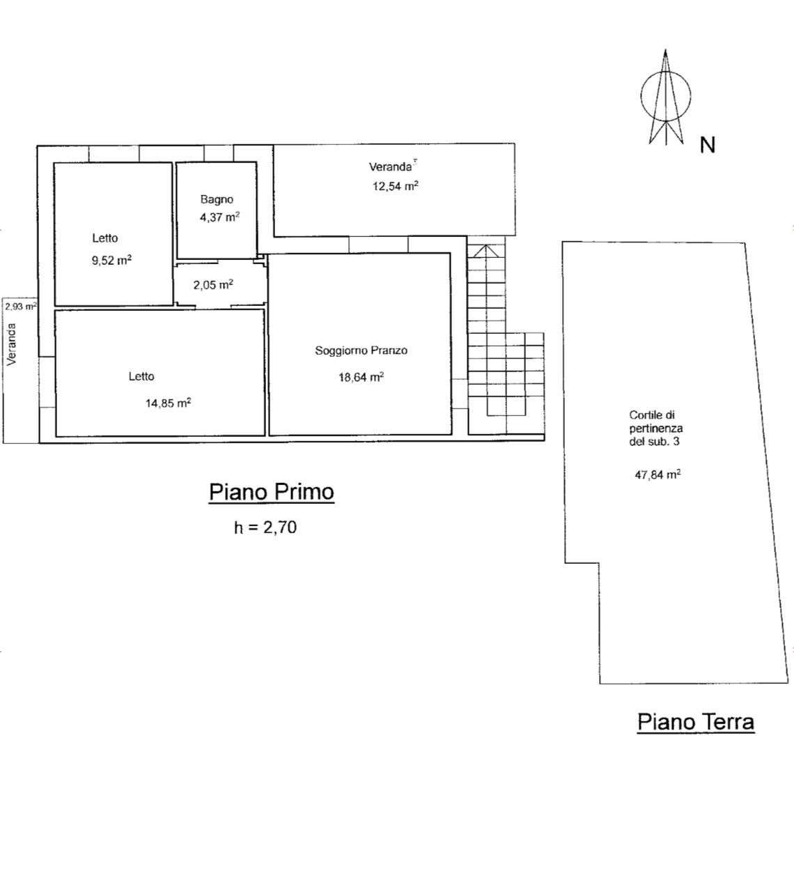
superficie commerciale di
72 m² e quindi ad un prezzo per metro quadrato pari a
1666 €/m²
.
Questo prezzo
è in linea con quello stimato da Caasa per immobili in vendita simili per tipologia e caratteristiche, presenti nella stessa zona, che è compreso tra
1.507 €/m² e
1.690 €/m².
Data la posizione dell'appartamento sono stati utilizzati come raffronto i valori medi nelle zone limitrofe . Caasa non è riuscita però a determinare in modo affidabile la classe energetica, che non è stata quindi utilizzata per affinare la stima proposta. In virtù di queste considerazioni l'intervallo dei valori possibili per l'offerta è relativamente ampio.
Mercato immobiliare a Torpè
Per quanto riguarda più in generale il comune di Torpè, sono presenti al momento più di cinquanta annunci per
appartamenti in vendita (meno del 10% dell'intera provincia) .
Possiamo inoltre considerare che in tutto il comune negli ultimi 6 mesi, i prezzi per appartamenti in vendita sono
in deciso aumento (+8,83%).
NOVITÀ Il risultato che vedi dipende dai dati che siamo riusciti ad estrarre dall'annuncio: ottieni una stima più accuranta di questo immobile, inserendo dati più precisi.
N.B. L'Opinione di Caasa® è un servizio sperimentale realizzato tramite tecniche di Intelligenza Artificiale, fornito senza alcuna garanzia di correttezza e completezza. Leggi il disclaimer o segnalaci un problema.
IMMAGINI
IN SINTESI
PROPOSTO DA:
AGENZIA IMMOBILIARE DI SALVA PINTO
DESCRIZIONE
con balcone
TORPè A Torpè, in Via della Liberazione, proponiamo in vendita un appartamento con ingresso indipendente e corte privata al piano terra, ideale per chi cerca privacy e comodità. Tramite una scala esterna si accede al piano superiore, dove ci accoglie una veranda spaziosa e arredata, perfetta per cene all'aperto. All'interno l'abitazione si apre su un luminoso soggiorno-pranzo, UN disimpegno conduce alla zona notte, composta da due camere da letto e un bagno funzionale. E' libero su 3 lati ed è dotato di predisposzione aria caldo/freddo ed ha riserva idrica. L'immobile non è mai stato abitato prima, nuovo! CLASSE ENERGETICA: In fase di valutazione (Classe Energetica in fase di richiesta







