Valutazione immobiliare indipendente, accurata e gratuita
L'Opinione di Caasa® per l'appartamento in vendita a Selargius a 220.000 € (cod.6534c515)
Secondo Caasa, per l'appartamento in vendita a Selargius, la richiesta di 220.000 € è leggermente vantaggiosa rispetto agli annunci simili.
Analisi immobiliare
L'appartamento, situato nella zona OMI B1, è proposto in vendita a
220.000 € per una
superficie commerciale di
101 m² e quindi ad un prezzo per metro quadrato pari a
2178 €/m²
.
Tale prezzo
è di poco inferiore a quello stimato da Caasa per immobili in vendita simili per tipologia e caratteristiche, presenti nella stessa zona, che è compreso tra
2.259 €/m² e
2.498 €/m².
Presa in considerazione la posizione dell'appartamento sono stati utilizzati come raffronto i valori medi nelle zone limitrofe . Caasa non è stata in grado di determinare la classe energetica, ma ad affinare la stima hanno contribuito però anche lo stato dell'immobile (di nuova costruzione) e la presenza di alcune caratteristiche significative come il posto auto o la presenza dell'ascensore. Per questi motivi i valori possibili per l'offerta costituiscono un intervallo relativamente ampio.
Mercato immobiliare a Selargius
Per quanto riguarda più in generale la città di Selargius, sono presenti al momento più di 200 annunci per
appartamenti in vendita (meno del 10% dell'intera provincia)
e il maggior numero di annunci per questa tipologia sono relativi alla zona di Su Planu.
Relativamente alla dinamica dei prezzi, possiamo dire che negli ultimi 6 mesi i prezzi medi in tutta la città per appartamenti in vendita sono
in debole diminuzione (-1,54%).
NOVITÀ Il risultato che vedi dipende dai dati che siamo riusciti ad estrarre dall'annuncio: ottieni una stima più accuranta di questo immobile, inserendo dati più precisi.
N.B. L'Opinione di Caasa® è un servizio sperimentale realizzato tramite tecniche di Intelligenza Artificiale, fornito senza alcuna garanzia di correttezza e completezza. Leggi il disclaimer o segnalaci un problema.
IMMAGINI
IN SINTESI
PROPOSTO DA:
Affiliato Tecnorete: STUDIO SANT' ELENA SRL
DESCRIZIONE
di nuova costruzione con posto auto con terrazza di nuova costruzione con angolo cottura con ascensore
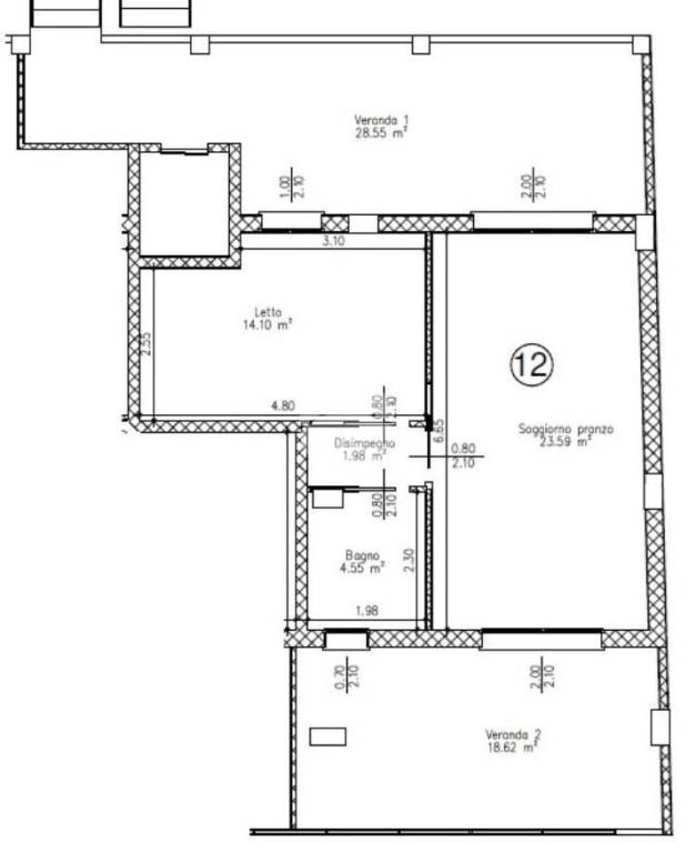
Selargius - Abbiamo il piacere di proporre in vendita un appartamento al 4° piano con ascensore e posto auto. Gli appartamenti sono prossimi alla consegna. Caratterizzato da doppia esposizione e spazi comodi, l'appartamento è composto da luminoso soggiorno con angolo cottura, una camera da letto, un bagno, disimpegno e due ampie verande coperte. Posto auto. Isola ecologica Dotato di impianto fotovoltaico, climatizzazione, scaldabagno a pompa di calore, recupero delle acque piovane, l'immobile avrà una classe energetica paria ad A4. Al prezzo indicato è necessario aggiungere l'IVA (al 4% se prima casa; altrimenti al 10%) Le immagini sono dei rendering, pubblicati a solo scopo rappresentativo


