Valutazione immobiliare indipendente, accurata e gratuita
L'Opinione di Caasa® per l'appartamento in vendita a Quartucciu a 240.000 € (cod.64e5e212)
Secondo Caasa, per l'appartamento in vendita a Quartucciu, la richiesta di 240.000 € è significativamente vantaggiosa rispetto agli annunci simili.
Analisi immobiliare
L'appartamento, situato nella zona OMI D1, è proposto in vendita (da Affiliato Tecnorete: IMMOBILIARE QUARTUCCIU S.R.L.) a
240.000 € per una
superficie commerciale di
91 m² e quindi ad un prezzo per metro quadrato pari a
2637 €/m²
.
Questo prezzo
è più vantaggioso di quello stimato da Caasa per immobili in vendita simili per tipologia, caratteristiche, classe energetica e zona, che è compreso tra
3.279 €/m² e
3.493 €/m².
Data la posizione dell'appartamento si sono utilizzati in raffronto i valori medi nelle zone limitrofe . Ad affinare la stima ha contribuito anche la classe energetica (A+) oltre alla conoscenza dello stato dell'immobile (di nuova costruzione) e di alcune caratteristiche significative come la presenza dell'ascensore o il posto auto. Per i motivi esposti è possibile ottenere un intervallo di valori accettabili per l'offerta relativamente limitato.
Mercato immobiliare a Quartucciu
Per quanto riguarda più in generale il comune di Quartucciu, sono presenti al momento più di cento annunci per
appartamenti in vendita (meno del 5% dell'intera provincia) .
Possiamo inoltre considerare che in tutto il comune negli ultimi 6 mesi, i prezzi per appartamenti in vendita sono
in leggero aumento (+2,78%).
NOVITÀ Il risultato che vedi dipende dai dati che siamo riusciti ad estrarre dall'annuncio: ottieni una stima più accuranta di questo immobile, inserendo dati più precisi.
N.B. L'Opinione di Caasa® è un servizio sperimentale realizzato tramite tecniche di Intelligenza Artificiale, fornito senza alcuna garanzia di correttezza e completezza. Leggi il disclaimer o segnalaci un problema.
IMMAGINI
IN SINTESI
PROPOSTO DA:
Affiliato Tecnorete: IMMOBILIARE QUARTUCCIU S.R.L.
VIA DON MINZONI 2, Quartucciu (CA)
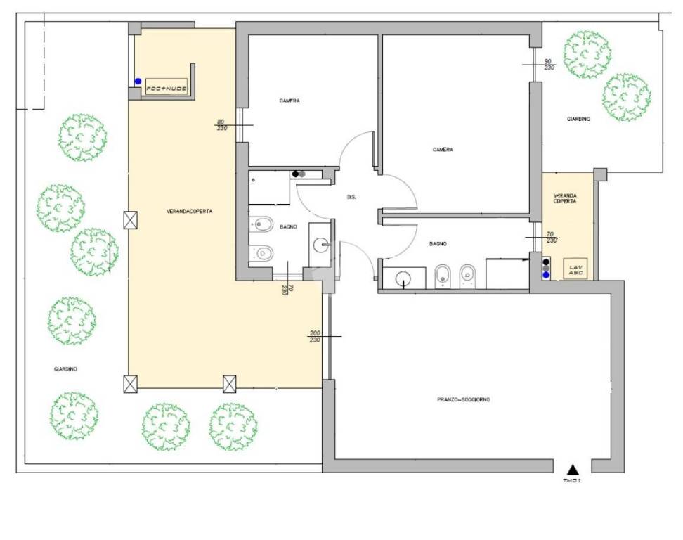
DESCRIZIONE
di nuova costruzione con posto auto con giardino di nuova costruzione con ascensore
Quartucciu - In un contesto residenziale, vicino ai principali servizi e ai mezzi pubblici, proponiamo in vendita un trivano al piano terra con giardino inserito in un moderno stabile con costruzione prevista per il 2027. L'appartamento è ideale per chi cerca ampi spazi e pertinenze esterne esclusive ed è composto da ingresso con zona pranzo soggiorno collegata ad un'ampia veranda coperta e al primo giardino, ideale per godere dei momenti di relax all'aperto. Dal disimpegno accediamo al bagno con affaccio su un'ulteriore veranda coperta, alle due camere, di cui la matrimoniale collegata al secondo giardino e al bagno principale. L'edificio sarà a energia quasi zero (nZEB), dotato di ascensore, fotovoltaico e posto auto per ogni unità. Sarà, inoltre, possibile personalizzare le finiture interne come da capitolato


