Valutazione immobiliare indipendente, accurata e gratuita
Appartamento in vendita a Quartu Sant'Elena a 138.000 € (cod.6575f903)
Caasa non ha sufficienti informazioni per commentare l'appartamento in vendita a Quartu Sant'Elena - 6575f903.
Analisi immobiliare
I dati in posseso di Caasa per quest'immobile sono insufficienti, inaffidabili o contraddittori per proporre un'analisi attendibile.
Mercato immobiliare a Quartu Sant'Elena
Per quanto riguarda più in generale la città di Quartu Sant'Elena, sono presenti al momento oltre 500 annunci per
appartamenti in vendita (quasi il 20% dell'intera provincia)
e il maggior numero di annunci per questa tipologia sono relativi alla zona di Musicisti.
La dinamica dei prezzi in tutta la città mostra che negli ultimi 6 mesi, i prezzi per appartamenti in vendita sono
in leggero aumento (+2,86%).
NOVITÀ Il risultato che vedi dipende dai dati che siamo riusciti ad estrarre dall'annuncio: ottieni una stima più accuranta di questo immobile, inserendo dati più precisi.
N.B. L'Opinione di Caasa® è un servizio sperimentale realizzato tramite tecniche di Intelligenza Artificiale, fornito senza alcuna garanzia di correttezza e completezza. Leggi il disclaimer o segnalaci un problema.
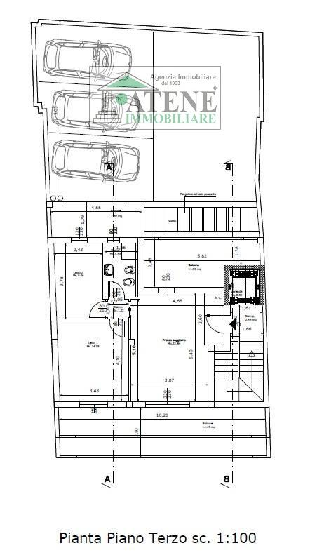
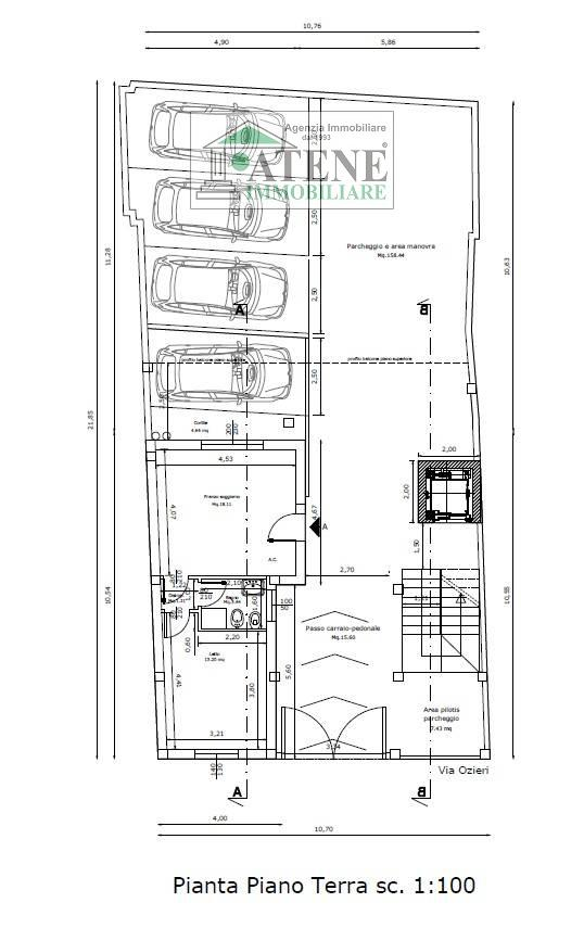
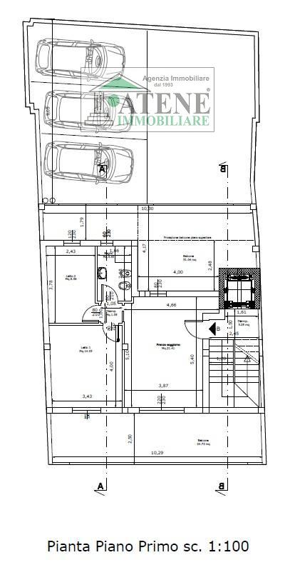
IMMAGINI
IN SINTESI
PROPOSTO DA:
ATENE IMMOBILIARE DI BASCIU MASSIMILIANO
VIA VITTORIO EMANUELE,110, Quartu Sant'Elena (CA)








