Valutazione immobiliare indipendente, accurata e gratuita
Locale commerciale a Quartu Sant'Elena in zona Pitz'e Serra a 360.000 € (cod.6502a243)
Caasa non ha sufficienti informazioni per commentare il locale commerciale a Quartu Sant'Elena Pitz'e Serra - 6502a243.
Analisi immobiliare
I dati in posseso di Caasa per quest'immobile sono insufficienti, inaffidabili o contraddittori per proporre un'analisi attendibile.
Mercato immobiliare a Quartu Sant'Elena
Per quanto riguarda più in generale la città di Quartu Sant'Elena, sono presenti al momento più di cento annunci per
locali commerciali in vendita (meno di un terzo dell'intera provincia)
e il maggior numero di annunci per questa tipologia sono relativi alla zona di Centro Storico, ma anche la zona di Pitz'e Serra è molto attiva dal punto di vista immobiliare.
Per quanto riguarda la richiesta media in zona Pitz'e Serra, dove sorge il locale commerciale (pressi Via Irlanda), essa è pari a circa
1.080 €/m² per locali commerciali in vendita.
La dinamica dei prezzi in tutta la città mostra che negli ultimi 6 mesi, i prezzi per locali commerciali in vendita sono
sostanzialmente stabili (-0,33%).
NOVITÀ Il risultato che vedi dipende dai dati che siamo riusciti ad estrarre dall'annuncio: ottieni una stima più accuranta di questo immobile, inserendo dati più precisi.
N.B. L'Opinione di Caasa® è un servizio sperimentale realizzato tramite tecniche di Intelligenza Artificiale, fornito senza alcuna garanzia di correttezza e completezza. Leggi il disclaimer o segnalaci un problema.
IMMAGINI
IN SINTESI
PROPOSTO DA:
immobiliare isola srl
DESCRIZIONE
di recente ristrutturazione con terrazza con cantina con balcone di recente ristrutturazione con ascensore
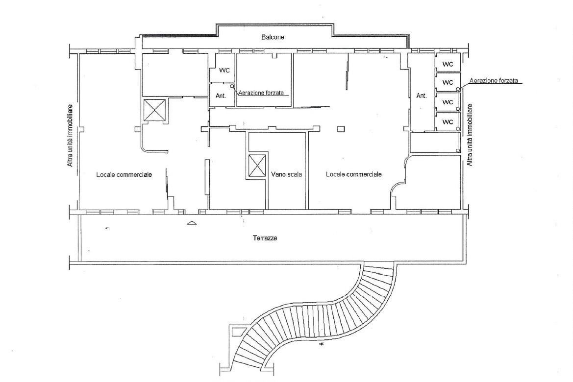
Pitz'e Serra, locale commerciale 220 mq con terrazza e ascensore. Via Irlanda, locale commerciale attualmente suddiviso in 2 vani di oltre 45 mq con doppia esposizione, altri 5 vani finestrati, un bagno con antibagno, ulteriore ambiente destinato ad antibagno, 4 wc e ripostiglio, terrazza frontale e balcone sul retro. L'immobile ubicato al piano primo ed usufruisce di accesso sia da rampa di scale, sia da ascensore ad uso esclusivo, contesto condominiale curato, palazzina con facciata ristrutturata. Categoria catastale D8, attualmente impiegato come studio/laboratorio, il locale si presta per lo svolgimento di diverse attivit quali baby parking ( attivit svolta in precedenza), centro diurno per anziani, studi associati professionisti o medici, palestra e varie altre. 220 mq interni 90 mq terrazza + balcone Per informazioni e appuntamenti Gabetti Quartu 070812505 3516575477 - SC9494295



