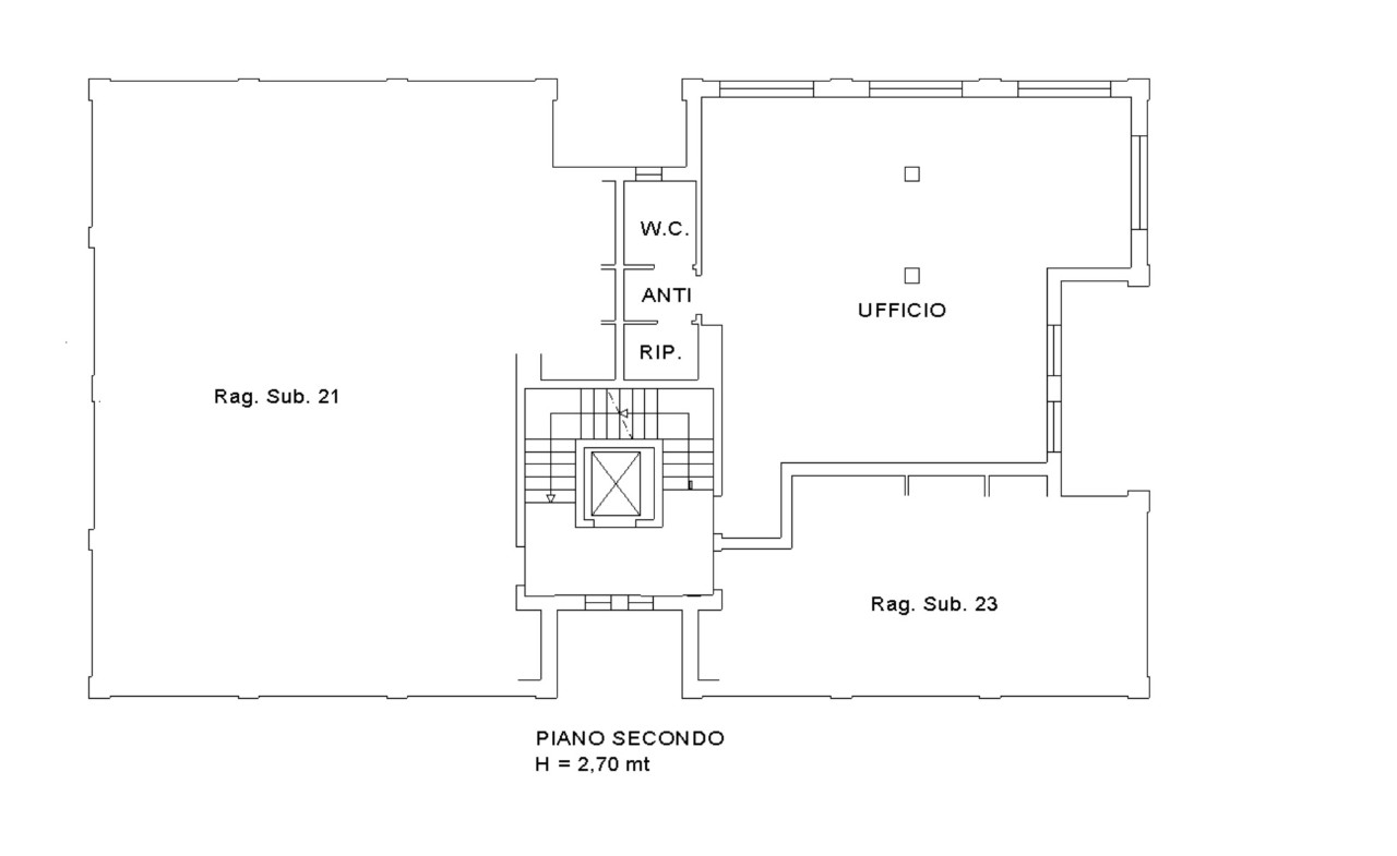
Valore uffici in affitto in zona Città Storica
In base al numero di annunci degli uffici in affitto attualmente presenti, la zona Città Storica è una tra le più importanti a Reggio nell'Emilia. Il prezzo richiesto in media nella zona è attualmente pari a 10,9 €/m² mese ed è nella maggioranza dei casi compreso tra 8,2 €/m² mese e 13,3 €/m² mese. Questo valore è circa il 13% superiore alla media cittadina e ne fa una zona tra le più costose in assoluto per questa tipologia. LEGGI ANCORA
Secondo i dati ufficiali sui contratti di locazione forniti dall' Agenzia delle Entrate riferiti alla zona OMI B3 (CENTRO STORICO), che è quella più vicina alla zona Città Storica, i prezzi al m² per un ufficio in affitto sono compresi tra 5,6 €/m² mese e 8,3 €/m² mese.
N.B. Tutti le informazioni immobiliari sono fornite senza alcuna garanzia. Leggi il disclaimer.


