N.B. Tutti le informazioni immobiliari sono fornite senza alcuna garanzia. Leggi il disclaimer.
Capannoni o case semindipendenti o locali commerciali con climatizzazione e con termocondizionamento in affitto a Reggio nell'Emilia in zona Carrozzone - pg. 2 di 2
MODIFICA QUESTA RICERCAAffittasi capannone industriale a Reggio nell'Emilia, Pieve Modolena PREMIUM
Affittasi capannone industriale a Reggio nell'Emilia, Pieve Modolena
capannone Pieve Modolena 25.000 € mese
REGGIO EMILIA ZONA PIEVE MODOLENA AFFITTASI CAPANNONE INDIPENDENTE MQ 6.700 COMPRENSIVO DI UFFICI CORTILE PRIVATO MQ 20.000 C.E G RIF 109155 ---- INFORMAZIONI TEL GUIDOTTI 335/7257041
LEGGI ANCORA
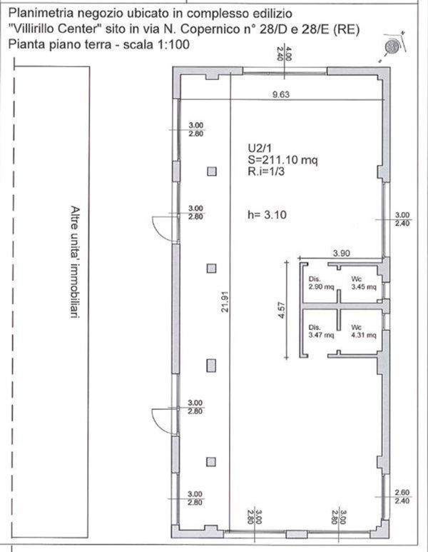
Affitto Locale commerciale Reggio nell'Emilia
locale commerciale 3.600 € mese
Proponiamo, zona Foro Boario, negozio in primaria posizione di mq. 235 con doppi servizi d'angolo con 6 vetrine in pregevole struttura commerciale adatto per qualsiasi tipo di attività. Ampio parcheggio. Riscaldamento e raffrescamento autonomo con pompa di calore. (Classe Energetica in fase di richiesta
LEGGI ANCORA
villa in affitto a Reggio nell'Emilia in zona Roncocesi
casa semindipendente Roncocesi 1.300 € mese
Roncocesi: Bellissima Villa singola con 3000 mq di giardino in zona tranquilla e riservata. Si propone in affitto villa singola semi arredata disposta tutta al piano rialzato per circa 150mq. Ampia veranda estate/inverno, ampio ingresso, cucina abitabile arredata, soggiorno arredato, sala luminosissima […]
LEGGI ANCORA
- prezzo medio casa indipendente a Reggio nell'Emilia : 8,6 €/m²
- prezzo medio villa a Reggio nell'Emilia : 8,7 €/m²
locale commerciale in affitto a Reggio nell'Emilia in zona Città Storica
locale commerciale Città Storica Santo Stefano-Gardenia 1.300 € mese
CENTRO STORICO: Proponiamo in locazione in centro storico, locale commerciale di 120mq. L'immobile e' idoneo per attivita' di tipo commerciale, oppure puo' essere utilizzato come ufficio. Comodo a tutti i servizi vicino a parcheggi pubblici. Chiediamo cortesemente, qualora interessati all'immobile in ogg […]
LEGGI ANCORA
- prezzo medio ufficio in zona OMI B3 : 10,9 €/m²
- prezzo medio locale commerciale in zona OMI B3 : 10,7 €/m²
locale commerciale in affitto a Reggio nell'Emilia in zona Città Storica
locale commerciale Città Storica 6.800 € mese
Locale Commerciale in Affitto a Due Passi dal Centro** Scopri questo fantastico locale commerciale di circa 400 mq, situato al piano rialzato e con ben 5 vetrine che garantiscono una visibilità eccezionale. La sua posizione angolare, a pochi minuti dal centro e vicino al tribunale, lo rende ideale per d […]
LEGGI ANCORA
Non perdere gli altri 5 annunci!



