Valutazione immobiliare indipendente, accurata e gratuita
Appartamento in affitto a Taranto in zona Italia-Montegranaro a 850 € mese (cod.64f5c17f)
Caasa non ha sufficienti informazioni per commentare l'appartamento a Taranto in zona Italia-Montegranaro - 64f5c17f.
Analisi immobiliare
I dati in posseso di Caasa per quest'immobile sono insufficienti, inaffidabili o contraddittori per proporre un'analisi attendibile.
Mercato immobiliare a Taranto
Per quanto riguarda più in generale la città di Taranto, sono presenti al momento più di 200 annunci per
appartamenti in affitto (quasi due terzi dell'intera provincia)
e il maggior numero di annunci per questa tipologia sono relativi alla zona di Borgo, mentre la zona di Italia-Montegranaro risulta molto meno attiva considerando il numero di annunci presenti.
La richiesta media nella zona dove sorge l'appartamento (Italia-Montegranaro pressi Viale Liguria) è pari a
6,4 €/m² mese che la rende la più economica della città .
La dinamica dei prezzi in tutta la città mostra che negli ultimi 6 mesi, i prezzi per appartamenti in affitto sono
sostanzialmente stabili (-1,21%).
NOVITÀ Il risultato che vedi dipende dai dati che siamo riusciti ad estrarre dall'annuncio: ottieni una stima più accuranta di questo immobile, inserendo dati più precisi.
N.B. L'Opinione di Caasa® è un servizio sperimentale realizzato tramite tecniche di Intelligenza Artificiale, fornito senza alcuna garanzia di correttezza e completezza. Leggi il disclaimer o segnalaci un problema.
IMMAGINI
IN SINTESI
PROPOSTO DA:
IMMOBILIARE TARANTINA S.R.L.
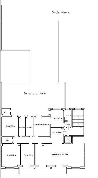
DESCRIZIONE
con ascensore con termocondizionamento con balcone con riscaldamento autonomo con terrazza con cucina abitabile
In zona altamente commerciale, ben collegata e con ogni servizio sotto casa: supermercati, farmacie, negozi, proponiamo in locazione un ampio appartamento di 167 mq al primo piano, perfetto per chi cerca spazi generosi e una posizione comoda e ben servita. Composizione: • Doppio ingresso • Salone doppio con balcone su Via Liguria • Tre camere da letto • Cucina abitabile con zona pranzo • Tre bagni • Due ripostigli • Ampio terrazzo interno di 190 mq, ideale per vivere momenti all'aperto in piena privacy • Riscaldamento autonomo • Porta blindata • Ascensore EPI: 59,675 kwh/m2 anno






