Valutazione immobiliare indipendente, accurata e gratuita
Casa indipendente in vendita a Martina Franca a 290.000 € (cod.651e0af6)
Caasa non ha sufficienti informazioni per commentare la casa indipendente in vendita a Martina Franca - 651e0af6.
Analisi immobiliare
I dati in posseso di Caasa per quest'immobile sono insufficienti, inaffidabili o contraddittori per proporre un'analisi attendibile.
Mercato immobiliare a Martina Franca
Per quanto riguarda più in generale la città di Martina Franca, sono presenti al momento circa mille annunci per
case indipendenti in vendita (meno di un terzo dell'intera provincia)
e il maggior numero di annunci per questa tipologia sono relativi alla zona di Centro Storico.
Possiamo inoltre considerare che in tutta la città negli ultimi 6 mesi, i prezzi per case indipendenti in vendita sono
sostanzialmente stabili (+1,23%).
NOVITÀ Il risultato che vedi dipende dai dati che siamo riusciti ad estrarre dall'annuncio: ottieni una stima più accuranta di questo immobile, inserendo dati più precisi.
N.B. L'Opinione di Caasa® è un servizio sperimentale realizzato tramite tecniche di Intelligenza Artificiale, fornito senza alcuna garanzia di correttezza e completezza. Leggi il disclaimer o segnalaci un problema.
IMMAGINI
IN SINTESI
PROPOSTO DA:
MY PROJECT CASA
DESCRIZIONE
da ristrutturare da ristrutturare con termocondizionamento con riscaldamento autonomo
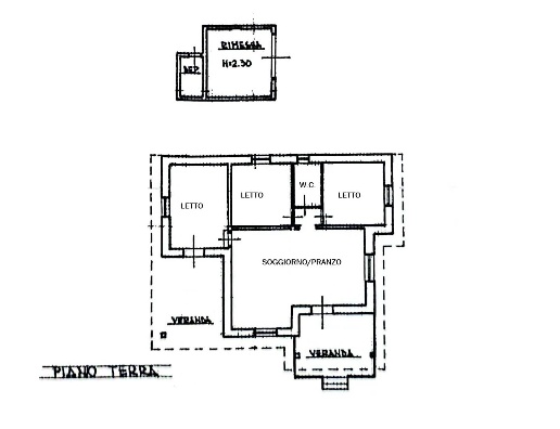
Rif. 1958 In vendita a Martina Franca, in direzione via Massafra, proponiamo una splendida villa ristrutturata di 121 mq situata al piano terra. Questa proprietà, caratterizzata da un ingresso indipendente, offre un ambiente ideale per famiglie e ama […]
