Valutazione immobiliare indipendente, accurata e gratuita
Appartamento in vendita a Laterza a 65.000 € (cod.655ff4e0)
Caasa non ha sufficienti informazioni per commentare l'appartamento in vendita a Laterza - 655ff4e0.
Analisi immobiliare
I dati in posseso di Caasa per quest'immobile sono insufficienti, inaffidabili o contraddittori per proporre un'analisi attendibile.
Mercato immobiliare a Laterza
Per quanto riguarda più in generale il comune di Laterza, sono presenti al momento più di trenta annunci per
appartamenti in vendita (meno dell'1% dell'intera provincia) .
Per quanto riguarda la dinamica dei prezzi, negli ultimi 6 mesi i prezzi medi in tutto il comune per appartamenti in vendita sono
in sostanziale aumento (+6,60%).
NOVITÀ Il risultato che vedi dipende dai dati che siamo riusciti ad estrarre dall'annuncio: ottieni una stima più accuranta di questo immobile, inserendo dati più precisi.
N.B. L'Opinione di Caasa® è un servizio sperimentale realizzato tramite tecniche di Intelligenza Artificiale, fornito senza alcuna garanzia di correttezza e completezza. Leggi il disclaimer o segnalaci un problema.
IMMAGINI
IN SINTESI
DESCRIZIONE
di recente costruzione con terrazza con termocondizionamento di recente costruzione con balcone di recente ristrutturazione
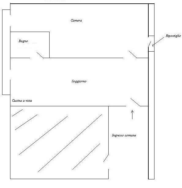
Da Privato. In vendita un appartamento bilocale di circa 60 mq, situato al primo piano di una palazzina in zona centrale, a pochi metri dalla via dello shopping e da numerosi esercizi commerciali (polleria, macelleria, gastronomia gourmet, bar, pizzerie, tabaccheria, rosticceria, cartolerie, panificio, supermercato e molto altro). L’immobile è composto da: -Soggiorno luminoso con cucina a vista -Camera da letto matrimoniale -Bagno finestrato -Balcone lungo e vivibile, ideale per momenti di relax, con esposizione su vicolo privato, soleggiato -Terrazzo ampio condiviso Caratteristiche e dotazioni: -Riscaldamento autonomo con caldaia Gas e termosifoni moderni -Aria condizionata -Zanzariere su tutte le finestre e portelli -Impianto elettrico rifatto di recente con prese moderne -Impianto antenna TV -Porta blindata Appartamento in buono stato, semiarredato, pronto per essere abitato. Nonostante la posizione centrale, l’area è caratterizzata da un traffico silenzioso e tranquillo. A soli 50 metri si trova la scuola elementare, mentre nelle immediate vicinanze sono presenti scuole medie inferiori e primarie. Soluzione ideale per coppie, single o come investimento data la comodità dei servizi e la posizione strategica. Per maggiori informazioni o per fissare una visita, contattaci! Prezzo trattabile



