Valutazione immobiliare indipendente, accurata e gratuita
Appartamento in vendita a Ginosa in zona Marina di Ginosa a 574.089 € (cod.652f21a0)
Caasa non ha sufficienti informazioni per commentare l'appartamento a Ginosa in zona Marina di Ginosa - 652f21a0.
Analisi immobiliare
I dati in posseso di Caasa per quest'immobile sono insufficienti, inaffidabili o contraddittori per proporre un'analisi attendibile.
Mercato immobiliare a Ginosa
Per quanto riguarda più in generale la città di Ginosa, sono presenti al momento più di 200 annunci per
appartamenti in vendita (meno del 5% dell'intera provincia)
e il maggior numero di annunci per questa tipologia sono relativi proprio alla zona di Marina di Ginosa.
Per quanto riguarda la richiesta media in zona Marina di Ginosa, dove sorge l'appartamento, essa è pari a circa
1.500 €/m² per appartamenti in vendita.
Per quanto riguarda la dinamica dei prezzi, negli ultimi 6 mesi i prezzi medi in tutta la città per appartamenti in vendita sono
in sostanziale aumento (+7,43%).
NOVITÀ Il risultato che vedi dipende dai dati che siamo riusciti ad estrarre dall'annuncio: ottieni una stima più accuranta di questo immobile, inserendo dati più precisi.
N.B. L'Opinione di Caasa® è un servizio sperimentale realizzato tramite tecniche di Intelligenza Artificiale, fornito senza alcuna garanzia di correttezza e completezza. Leggi il disclaimer o segnalaci un problema.
IMMAGINI
IN SINTESI
DESCRIZIONE
con terrazza con posto auto con garage con balcone in asta giudiziaria
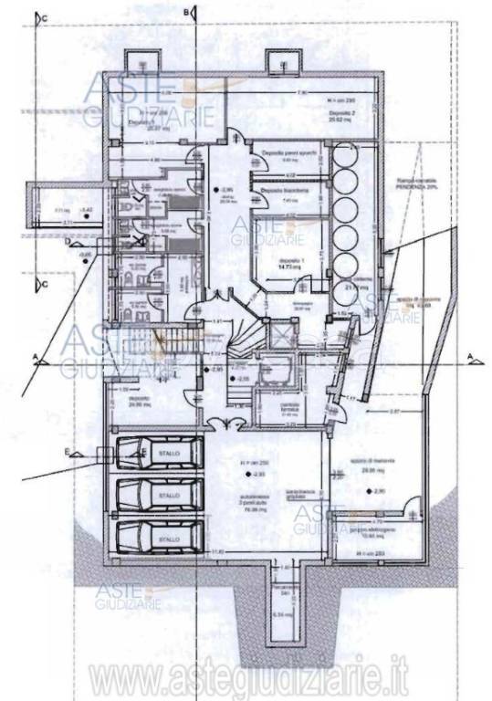
Vendesi in asta giudiziaria, STRUTTURA RICETTIVA con PISCINA, SPA, GARAGE e SPAZIO ESTERNO, situata in Viale Ionio 401, una via residenziale e balneare della frazione di Marina di Ginosa, con servizi locali come bar, negozi e alloggi turistici, situata in un contesto di villeggiatura vicino al mare Ionio e alla pineta costiera. La spiaggia è raggiungibile a piedi in pochi minuti e Taranto dista circa 40 km, mentre Bari è a circa 100 km. VALORE DI PERIZIA - STIMA DI MERCATO € 1.020.600 La struttura ancora in fase di costruzione, si sviluppa su una superficie di 450 mq sviluppati su 5 LIVELLI, e composta da: * PIANO SEMINTERRATO: costituito da AUTORIMESSA, -centrale termica, - riserva idrica, - servizi igienici, - aree deposito destinati alla funzionalità dell'albergo; * PIANO TERRA: costituito da - reception ed hall, - ufficio, - bar, - cucina e ristorante, - servizi igienici, - AMPIO SPAZIO ESTERNO con PISCINA; * 1° e 2° PIANO: con 8 camere da letto per piano, con annesso bagno interno con finestre e/o balconi, * PIANO ATTICO: 2 camere da letto per portatori di handicap, - SPA costituita da bagno turco, sauna, idromassaggio e sala massaggi, - TERRAZZO; OTTIMO RAPPORTO €/mq considerando le quotazioni della zona. Il prezzo a cui ci si riferisce è l’OFFERTA MINIMA da presentare per partecipare. CONTATTACI AL N.375.785.21.70 PER FISSARE UN APPUNTAMENTO PRESSO LA NOSTRA SEDE DI TARANTO. Siamo anche disponibili presso le nostre sedi di CAGLIARI, LECCE, BARI, LIVORNO, FIRENZE, BRESCIA E MILANO. I dati inseriti sono stati estratti dalla perizia e dell'avviso di vendita. Per visionare le FOTO INTERNE e avere MAGGIORI INFORMAZIONI sull’immobile, prego contattare telefonicamente per fissare un APPUNTAMENTO nelle nostre sedi. Il team di AVVOCATI e PROFESSIONISTI IMMOBILIARI di Valore Aggiunto Consulting sarà lieto di spiegarvi i vantaggi di questa ed altre opportunità presenti, offrendovi il servizio più completo sul mercato, prevenendo ogni problema. Infatti, ci occuperemo di: •Effettuare uno STUDIO APPROFONDITO del[…]

