Valutazione immobiliare indipendente, accurata e gratuita
Appartamento in vendita a Crispiano a 96.000 € (cod.64ec588a)
Caasa non ha sufficienti informazioni per commentare l'appartamento in vendita a Crispiano - 64ec588a.
Analisi immobiliare
I dati in posseso di Caasa per quest'immobile sono insufficienti, inaffidabili o contraddittori per proporre un'analisi attendibile.
Mercato immobiliare a Crispiano
Per quanto riguarda più in generale il comune di Crispiano, sono presenti al momento più di cento annunci per
appartamenti in vendita (meno del 5% dell'intera provincia) .
Possiamo inoltre considerare che in tutto il comune negli ultimi 6 mesi, i prezzi per appartamenti in vendita sono
in debole aumento (+2,09%).
NOVITÀ Il risultato che vedi dipende dai dati che siamo riusciti ad estrarre dall'annuncio: ottieni una stima più accuranta di questo immobile, inserendo dati più precisi.
N.B. L'Opinione di Caasa® è un servizio sperimentale realizzato tramite tecniche di Intelligenza Artificiale, fornito senza alcuna garanzia di correttezza e completezza. Leggi il disclaimer o segnalaci un problema.
IMMAGINI
IN SINTESI
DESCRIZIONE
con cantina con terrazza con balcone
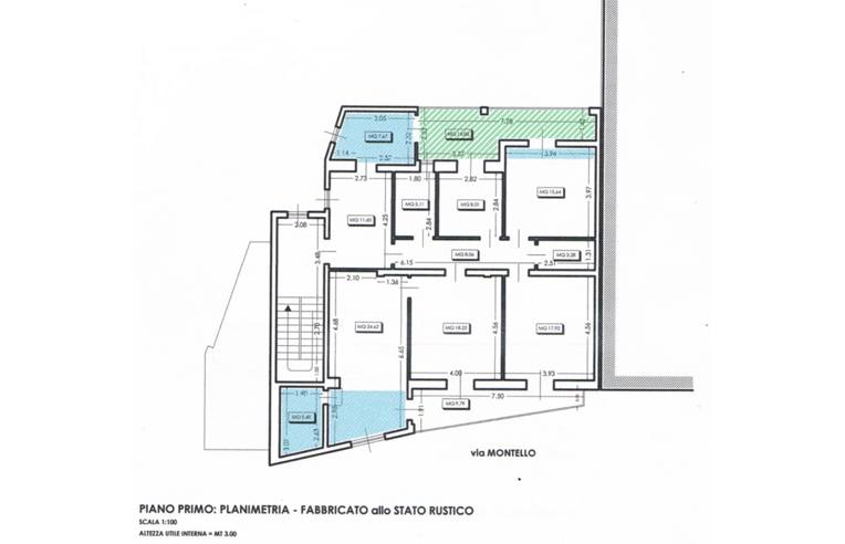
Da Privato. a Crispiano in via Montello quartiere San Francesco vendo appartamento di mq 150 posto al 1° piano, allo stato rustico, con accesso indipendente così composto: ingresso, tinello, soggiorno, cucina, bagno, disimpegno, n.3 camere da letto, ripostiglio, bagno di servizio, balcone e porticato retro. Lastrico solare di esclusiva proprietà e con possibilità di costruire un piano attico. Classe energetica non determinabile in quanto immobile rustico

