Valutazione immobiliare indipendente, accurata e gratuita
Locale commerciale in vendita a Taviano a 195.000 € (cod.655bf17a)
Caasa non ha sufficienti informazioni per commentare il locale commerciale in vendita a Taviano - 655bf17a.
Analisi immobiliare
I dati in posseso di Caasa per quest'immobile sono insufficienti, inaffidabili o contraddittori per proporre un'analisi attendibile.
Mercato immobiliare a Taviano
Per quanto riguarda più in generale il comune di Taviano, sono presenti al momento più di dieci annunci per
locali commerciali in vendita (meno del 5% dell'intera provincia)
e il maggior numero di annunci per questa tipologia sono relativi alla zona di Marina di Mancaversa.
NOVITÀ Il risultato che vedi dipende dai dati che siamo riusciti ad estrarre dall'annuncio: ottieni una stima più accuranta di questo immobile, inserendo dati più precisi.
N.B. L'Opinione di Caasa® è un servizio sperimentale realizzato tramite tecniche di Intelligenza Artificiale, fornito senza alcuna garanzia di correttezza e completezza. Leggi il disclaimer o segnalaci un problema.
IMMAGINI
IN SINTESI
PROPOSTO DA:
AGENZIA DOMUS IMMOBILIARE
DESCRIZIONE
da ristrutturare con giardino con posto auto da ristrutturare con garage senza ascensore
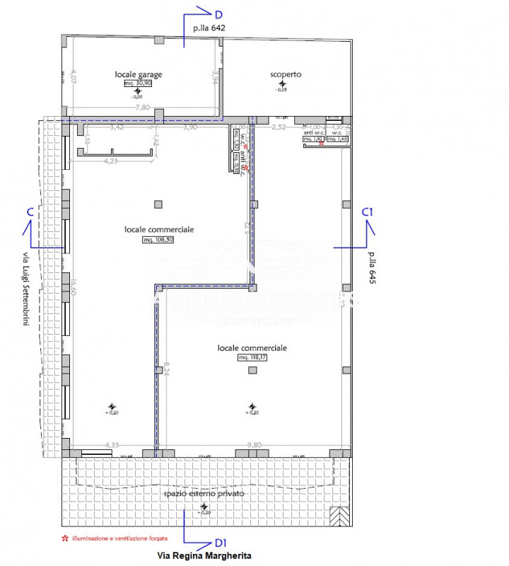
Proponiamo in vendita fabbricato composto da due locali commerciali, un locale garage/deposito e piccolo scoperto retrostante, ubicato nel comune di Taviano, lungo Via Regina Margherita n. 245, arteria principale di collegamento tra Taviano e Racale, caratterizzata da forte passaggio veicolare e massima visibilità commerciale. L'immobile si sviluppa in posizione angolare tra Via Regina Margherita e Via Settembrini, elemento che ne aumenta ulteriormente l'esposizione e l'attrattività. Complessivamente dispone di sette vetrine fronte strada, tutte dotate di vetri antisfondamento: 2 vetrine sul locale affacciato su Via Regina Margherita 5 vetrine sul locale angolare tra Via Regina Margherita e Via Settembrini I locali si presentano in buone condizioni generali, con allacci alla rete fognaria e all'acquedotto già presenti. Uno dei locali commerciali, precisamente quello posto ad angolo, è attualmente locato con regolare contratto di locazione in essere con scadenza 01/11/2028, garantendo sin da subito una rendita certa (dettagli sul canone annuo disponibili presso la nostra agenzia). La restante parte dell'immobile, comprensiva del locale commerciale libero e del garage/deposito su Via Settembrini, consente un utilizzo immediato da parte dell'acquirente o ulteriori possibilità di messa a reddito. Soluzione altamente versatile, ideale sia come investimento a reddito sia per chi desidera conciliare rendita immediata e utilizzo diretto, grazie alla composizione funzionale e alla posizione strategica su una delle vie più trafficate del paese





