Valutazione immobiliare indipendente, accurata e gratuita
Negozio in vendita a Nardò in zona Pagani a 174.250 € (cod.6521f31c)
Caasa non ha sufficienti informazioni per commentare il negozio in vendita a Nardò in zona Pagani - 6521f31c.
Analisi immobiliare
I dati in posseso di Caasa per quest'immobile sono insufficienti, inaffidabili o contraddittori per proporre un'analisi attendibile.
Mercato immobiliare a Nardò
Per quanto riguarda più in generale la città di Nardò, sono presenti al momento circa cento annunci per
negozi in vendita (meno del 5% dell'intera provincia)
e il maggior numero di annunci per questa tipologia sono relativi alla zona di Santa Maria al Bagno, mentre la zona di Pagani risulta molto meno attiva considerando il numero di annunci presenti.
Vedi altre informazioni direttamente su
Mercato-Immobiliare.info
NOVITÀ Il risultato che vedi dipende dai dati che siamo riusciti ad estrarre dall'annuncio: ottieni una stima più accuranta di questo immobile, inserendo dati più precisi.
N.B. L'Opinione di Caasa® è un servizio sperimentale realizzato tramite tecniche di Intelligenza Artificiale, fornito senza alcuna garanzia di correttezza e completezza. Leggi il disclaimer o segnalaci un problema.
IMMAGINI
IN SINTESI
PROPOSTO DA:
Quimmo
DESCRIZIONE
di recente ristrutturazione di recente ristrutturazione con cantina da ristrutturare in asta giudiziaria senza ascensore
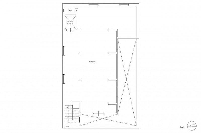
Quest'immobile viene venduto tramite asta online. Ampio fabbricato a destinazione commerciale, situato nel Comune di Nardò (LC), in Contrada Pagani, Via Luigi Mariano (ex Via 171). Sorge al bordo periferico di un quartiere residenziale di recente costituzione, composto soprattutto da villette unifamiliari di uno/due piani. L'immobile si sviluppa su quattro livelli (seminterrato, piano rialzato, primo e secondo piano), oltre ad un'area scoperta frontale di circa 84 mq. Il piano seminterrato è composto da un'area destinata a negozio; deposito; ripostiglio; due bagni. Il piano rialzato è composto da un'area destinata a negozio; deposito; un bagno. Il piano primo è composto da un'area destinata a negozio e da un bagno. Il piano secondo è composto da un'area destinata a negozio; un bagno; un'area esterna. In corrispondenza a ogni piano c'è un vano per la predisposizione di un montacarichi, attualmente vuoto. L'immobile non è provvisto di un'area parcheggio riservata, se non i pochi posti che consentirebbe l'area scoperta qualora si eliminasse il muretto di recinzione presente. Non sono presenti difformità, ma per maggiori specifiche sulla regolarità edilizio-urbanistica si rimanda alla perizia (pag 6-7). L'edificio è attualmente inutilizzato e necessita di un intervento di ristrutturazione. Per maggiori dettagli consultare la documentazione allegata. Quimmo.it: iniziativa tech del Gruppo illimity specializzata nell'intermediazione digitale di beni immobili provenienti da tribunali, nuovi sviluppi immobiliari, financial institutions e libero mercato. Da oltre 10 anni Quimmo.it è il portale specializzato nella compravendita di immobili tramite asta giudiziaria. Il portale è infatti iscritto nel Registro Gestori della vendita telematica e nell'elenco dei siti web autorizzati allo svolgimento della pubblicità legale. Con Quimmo puoi scegliere tra migliaia di immobili di ogni tipo e partecipare alle aste online per acquistare la soluzione più adatta alle tue esigenze. Affidati all'esperienza decennale dei nostri es[…]


