Valutazione immobiliare indipendente, accurata e gratuita
Appartamento in vendita a Calimera a 35.000 € (cod.6542b5ee)
Caasa non ha sufficienti informazioni per commentare l'appartamento in vendita a Calimera - 6542b5ee.
Analisi immobiliare
I dati in posseso di Caasa per quest'immobile sono insufficienti, inaffidabili o contraddittori per proporre un'analisi attendibile.
Mercato immobiliare a Calimera
Per quanto riguarda più in generale il comune di Calimera, sono presenti al momento più di cinquanta annunci per
appartamenti in vendita (meno dell'1% dell'intera provincia) .
Possiamo inoltre considerare che in tutto il comune negli ultimi 6 mesi, i prezzi per appartamenti in vendita sono
in deciso aumento (+8,39%).
NOVITÀ Il risultato che vedi dipende dai dati che siamo riusciti ad estrarre dall'annuncio: ottieni una stima più accuranta di questo immobile, inserendo dati più precisi.
N.B. L'Opinione di Caasa® è un servizio sperimentale realizzato tramite tecniche di Intelligenza Artificiale, fornito senza alcuna garanzia di correttezza e completezza. Leggi il disclaimer o segnalaci un problema.
IMMAGINI
IN SINTESI
PROPOSTO DA:
Stemar House Immobiliare di Bisconti Marco
Via Alcide De Gasperi, 10/A - , Lecce (LE)
DESCRIZIONE
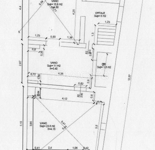
da ristrutturare con terrazza da ristrutturare
Nella splendida cornice dei comuni della Grecia Salentina dove ancora si parla il "griko antico" dialetto neo-greco proponiamo una casa indipendente nelle immediate vicinanze del centro del paese e in una posizione ben servita e con facilita di parcheggio auto.L'immobile e situato in una strategica posizione angolare, ottima per uso investimento di diverse tipologia del settore commerciale, turistico o semplicemente abitativo.Si presenta da ristrutturare con margini di potenzialita elevati.Area solare e spazio retrostante scoperto. L'immobile e indipendente

