Valutazione immobiliare indipendente, accurata e gratuita
Casa indipendente in vendita a San Severo in zona Centro Storico a 39.000 € (cod.6596a0f2)
Caasa non ha sufficienti informazioni per commentare la casa indipendente a San Severo Centro Storico - 6596a0f2.
Analisi immobiliare
I dati in posseso di Caasa per quest'immobile sono insufficienti, inaffidabili o contraddittori per proporre un'analisi attendibile.
Mercato immobiliare a San Severo
Per quanto riguarda più in generale la città di San Severo, sono presenti al momento quasi 500 annunci per
case indipendenti in vendita (quasi il 20% dell'intera provincia)
e il maggior numero di annunci per questa tipologia sono relativi proprio alla zona di Centro Storico.
Per quanto riguarda la richiesta media in zona Centro Storico, dove sorge la casa indipendente (pressi Via Giuseppe Mazzini), essa è pari a circa
730 €/m² per case indipendenti in vendita.
Possiamo inoltre considerare che in tutta la città negli ultimi 6 mesi, i prezzi per case indipendenti in vendita sono
sostanzialmente stabili (-0,97%).
Invece i prezzi per la zona di sono in debole diminuzione.
NOVITÀ Il risultato che vedi dipende dai dati che siamo riusciti ad estrarre dall'annuncio: ottieni una stima più accuranta di questo immobile, inserendo dati più precisi.
N.B. L'Opinione di Caasa® è un servizio sperimentale realizzato tramite tecniche di Intelligenza Artificiale, fornito senza alcuna garanzia di correttezza e completezza. Leggi il disclaimer o segnalaci un problema.
IMMAGINI
IN SINTESI
PROPOSTO DA:
ICONACASA - San Severo
DESCRIZIONE
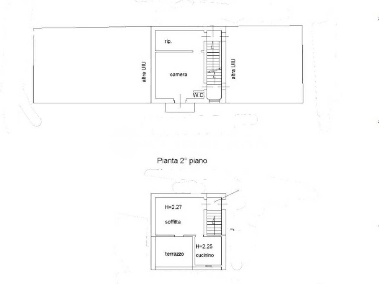
di recente costruzione con terrazza con balcone con cucina abitabile di recente costruzione
SEMI-INDIPENDENTE IN BUONO STATO, IN ZONA VIA MAZZINI Proponiamo in vendita, in Via Aurelio Saffi , soluzione semi-indipendente su due livelli, caratterizzata da ambienti luminosi, accoglienti e un terrazzo ideale per cene estive rilassanti. Al primo piano troviamo un'ampia camera da letto luminosa, un piccolo soggiorno e il bagno. Salendo al secondo piano ci accoglie un soggiorno che affaccia sul terrazzo e un'accogliente cucina abitabile. l'immobile si presenta in discreto stato. L'altezza del solaio al primo piano è di circa 3,50 mt, che permette di realizzare una controsoffittatura con faretti d'arredo. Il bagno è in ceramica. Il pavimento è in graniglia di marmo. Il pavimento del terrazzo è in ceramica. Gli infissi al primo piano sono di recente installazione in PVC con triplo vetro. Le porte interne sono in legno. Classe energetica in corso di valutazione La soluzione esternamente si presenta in buono stato, con ampio balcone e spazioso terrazzo. La facciata si presenta in buone condizioni con mattoncino faccia - vista. L'immobile è ubicato in zona centrale a pochi passi da Corso Amedeo D'Aosta e da Via Mazzini. Il vero punto di forza di questa abitazione è la sua posizione, situato in una delle zone più servite e ricercate, permettendo di gestire le attività quotidiane a piedi . Troviamo attività commerciali di prima necessità, farmacie e fermate di mezzi pubblici. Buono stato Terrazzo Semi-indipendente Luminosa e accogliente

