Valutazione immobiliare indipendente, accurata e gratuita
Appartamento in vendita a Manfredonia in zona Siponto a 260.000 € (cod.6581addf)
Caasa non ha sufficienti informazioni per commentare l'appartamento a Manfredonia in zona Siponto - 6581addf.
Analisi immobiliare
I dati in posseso di Caasa per quest'immobile sono insufficienti, inaffidabili o contraddittori per proporre un'analisi attendibile.
Mercato immobiliare a Manfredonia
Per quanto riguarda più in generale la città di Manfredonia, sono presenti al momento oltre 500 annunci per
appartamenti in vendita (meno del 10% dell'intera provincia)
e il maggior numero di annunci per questa tipologia sono relativi alla zona di Centro Storico, mentre la zona di Siponto risulta molto meno attiva considerando il numero di annunci presenti.
La richiesta media nella zona dove sorge l'appartamento (Siponto) è pari a
1.860 €/m² e ne fa la più pregiata della città .
La dinamica dei prezzi in tutta la città mostra che negli ultimi 6 mesi, i prezzi per appartamenti in vendita sono
in leggera diminuzione (-3,22%).
NOVITÀ Il risultato che vedi dipende dai dati che siamo riusciti ad estrarre dall'annuncio: ottieni una stima più accuranta di questo immobile, inserendo dati più precisi.
N.B. L'Opinione di Caasa® è un servizio sperimentale realizzato tramite tecniche di Intelligenza Artificiale, fornito senza alcuna garanzia di correttezza e completezza. Leggi il disclaimer o segnalaci un problema.
IMMAGINI
IN SINTESI
DESCRIZIONE
con cantina con ascensore con cucina abitabile
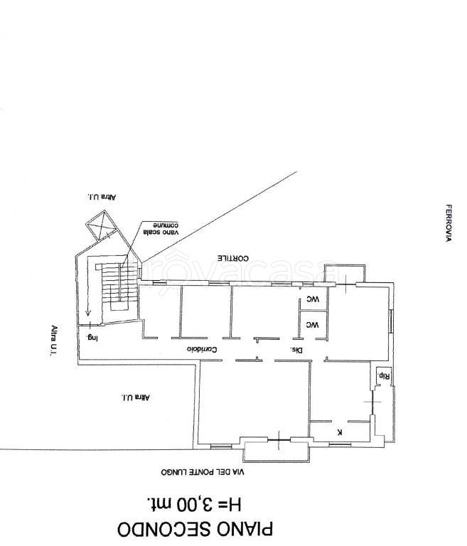
Si propone in vendita in viale Giuseppe di Vittorio, zona stazione, appartamento vista mare di mq. 199 posto al secondo piano con ascensore. L'immobile è composto da ingresso, ampia sala da pranzo, cucina abitabile con cucinino, quattro camere da letto, due bagni e un ripostiglio. Tripla esposizione con vista mare sul litorale di Siponto e sul porto turistico di Manfredonia. Per le sue caratteristiche si presta in una eventuale frazionamento in due unità abitative. Libero subito


