Valutazione immobiliare indipendente, accurata e gratuita
Appartamento in vendita a Foggia a 60.000 € (cod.6531ca01)
Caasa non ha sufficienti informazioni per commentare l'appartamento in vendita a Foggia - 6531ca01.
Analisi immobiliare
I dati in posseso di Caasa per quest'immobile sono insufficienti, inaffidabili o contraddittori per proporre un'analisi attendibile.
Mercato immobiliare a Foggia
Per quanto riguarda più in generale la città di Foggia, sono presenti al momento ben oltre 2.000 annunci per
appartamenti in vendita (meno di un terzo dell'intera provincia)
e il maggior numero di annunci per questa tipologia sono relativi alla zona di Centro Città.
Relativamente alla dinamica dei prezzi, possiamo dire che negli ultimi 6 mesi i prezzi medi in tutta la città per appartamenti in vendita sono
in debole diminuzione (-1,90%).
NOVITÀ Il risultato che vedi dipende dai dati che siamo riusciti ad estrarre dall'annuncio: ottieni una stima più accuranta di questo immobile, inserendo dati più precisi.
N.B. L'Opinione di Caasa® è un servizio sperimentale realizzato tramite tecniche di Intelligenza Artificiale, fornito senza alcuna garanzia di correttezza e completezza. Leggi il disclaimer o segnalaci un problema.
IMMAGINI
IN SINTESI
PROPOSTO DA:
OMNIBUS IMMOBILIARE SRL
DESCRIZIONE
con angolo cottura
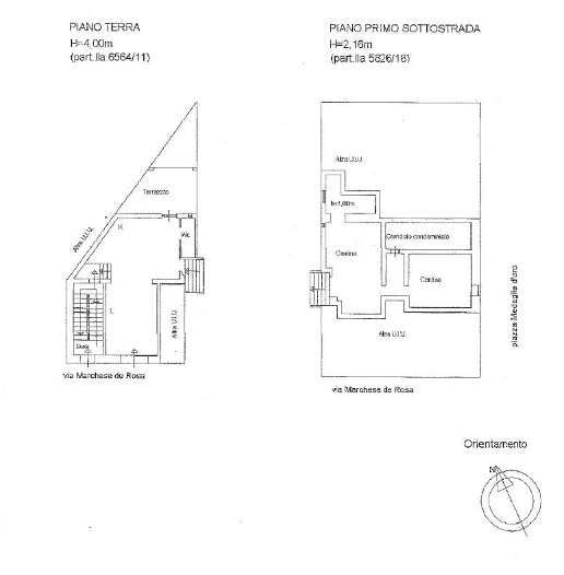
PER MAGGIORI INFORMAZIONI CONTATTATECI SU WHATSAP AL 0881617004 Abitazione piano terra su via Marchese De Rosa con l'ingresso sia dal portone condominiale che da una comoda vetrina/ingresso su fronte strada. L'appartamento attualmente è un locale commerciale dove è in corso il cambio di destinazione in abitazione. La zona è piena di servizi ed è a pochi metri da piazza medaglie d'oro. L'appartamento è composto da un unico ampio ambiente con angolo cottura e bagno oltre ad un giardinetto posteriore e dei locali seminterrati che hanno accesso anche da Piazza medaglie d' oro. Contattaci per maggiori informazioni e per organizzare una visita. Classe Energetica: G

