Valutazione immobiliare indipendente, accurata e gratuita
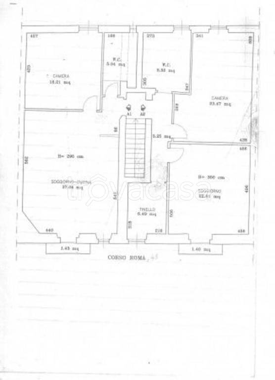
Appartamento in vendita a Foggia in zona Immacolata / San Pio X a 295.000 € (cod.64fb268a)
Caasa non ha sufficienti informazioni per commentare l'appartamento a Foggia Immacolata / San Pio X - 64fb268a.
Analisi immobiliare
I dati in posseso di Caasa per quest'immobile sono insufficienti, inaffidabili o contraddittori per proporre un'analisi attendibile.
Mercato immobiliare a Foggia
Per quanto riguarda più in generale la città di Foggia, sono presenti al momento ben oltre 2.000 annunci per
appartamenti in vendita (meno di un terzo dell'intera provincia)
e il maggior numero di annunci per questa tipologia sono relativi alla zona di Centro Città, mentre nella zona di Immacolata / San Pio X è presente un numero significativamente inferiore di annunci.
La richiesta media nella zona dove sorge l'appartamento (Immacolata / San Pio X pressi Corso Roma) è pari a
1.125 €/m², molto vicina ai valori della zona Macchia Gialla che sono i più alti della città .
Possiamo inoltre considerare che in tutta la città negli ultimi 6 mesi, i prezzi per appartamenti in vendita sono
sostanzialmente stabili (-0,93%).
NOVITÀ Il risultato che vedi dipende dai dati che siamo riusciti ad estrarre dall'annuncio: ottieni una stima più accuranta di questo immobile, inserendo dati più precisi.
N.B. L'Opinione di Caasa® è un servizio sperimentale realizzato tramite tecniche di Intelligenza Artificiale, fornito senza alcuna garanzia di correttezza e completezza. Leggi il disclaimer o segnalaci un problema.

