Valutazione immobiliare indipendente, accurata e gratuita

Appartamento in vendita a Cerignola a 73.500 € (cod.64e9192f)

Caasa non ha sufficienti informazioni per commentare l'appartamento in vendita a Cerignola - 64e9192f.

Analisi immobiliare
I dati in posseso di Caasa per quest'immobile sono insufficienti, inaffidabili o contraddittori per proporre un'analisi attendibile.
Mercato immobiliare a Cerignola
Per quanto riguarda più in generale la città di Cerignola, sono presenti al momento quasi 500 annunci per appartamenti in vendita (meno del 10% dell'intera provincia) e il maggior numero di annunci per questa tipologia sono relativi alla zona di Centro Città.

La dinamica dei prezzi in tutta la città mostra che negli ultimi 6 mesi, i prezzi per appartamenti in vendita sono in aumento (+4,98%).

NOVITÀ Il risultato che vedi dipende dai dati che siamo riusciti ad estrarre dall'annuncio: ottieni una stima più accuranta di questo immobile, inserendo dati più precisi.

N.B. L'Opinione di Caasa® è un servizio sperimentale realizzato tramite tecniche di Intelligenza Artificiale, fornito senza alcuna garanzia di correttezza e completezza. Leggi il disclaimer o segnalaci un problema.

IMMAGINI

IN SINTESI

Prezzo:
73.500 €
Superficie:
111 m²
Prezzo al m²:
662 €/m²
Piano:
Bagni:
2
Classe energetica:
G
Città:
Cerignola (FG)
Zona OMI:
D2 (ZONA ESTERNA,V.LE PONENTE,LEVANTE,M.AUSILIATRICE)
Indirizzo:
Pubblicato:
ven 7 marzo 2025

PROPOSTO DA:

IMMOBILIARE INTERAMNIA

DESCRIZIONE

di recente costruzione con terrazza con cantina con balcone di recente costruzione in asta giudiziaria

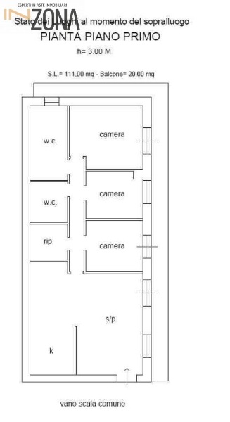
ASTA 4065 ----> Appartamento in buono stato conservativo ubicata al piano primo. L'unità immobiliare è composta da cucina, soggiorno/pranzo, 3 camere da letto, 2 bagni, ripostiglio, corridoio e un balcone di pertinenza. Nella zona notte i pavimenti sono in parquet. DATA E ORA asta 06/06/2024 18:00 tipo di asta: online e sincrona PREZZO BASE 98.000,00 OFFERTA MINIMA 73.500,00 L esattezza di tutti i dati pubblicati sarà confermata in sede di consulenza. Ti piacerebbe comprare una casa all'asta ma non sai come fare perché non sei un esperto? Contattaci per avere maggiori informazioni su questo immobile e su come poterlo acquistare in totale sicurezza. INZONA offre un servizio di ASSISTENZA TECNICO - LEGALE per l'acquisto di immobili in asta attraverso queste attività: PRIMA CONSULENZA: Appuntamento presso la nostra sede di Viale Michelangelo 187 Foggia per offrire chiarimenti sulle aste ed ascoltare le tue esigenze immobiliari. - Mediazione creditizia - studio fattibilità per la partecipazione in asta con mutuo fino al 100% - Studio della perizia e della documentazione dell'immobile - Accertamenti catastali per eventuali abusi edilizi - Accompagnamento Visita Immobile - Disbrigo pratiche per la partecipazione all'asta (anche solo compilazione della domanda) - Rappresentanza Legale il giorno della vendita - Rilascio del decreto di trasferimento in tempi brevi - Assistenza per il Saldo Prezzo - Compilazione F24 per Tasse - Disbrigo Pratiche per Eventuale Sanatoria - Assistenza alla Consegna Immobile Contattaci per avere maggiori informazioni sull'immobile e su come partecipare all'asta

  • yescasa.it
  • pcase.it