Valutazione immobiliare indipendente, accurata e gratuita
Appartamento in vendita a Ceglie Messapica a 93.500 € (cod.651b6960)
Caasa non ha sufficienti informazioni per commentare l'appartamento in vendita a Ceglie Messapica - 651b6960.
Analisi immobiliare
I dati in posseso di Caasa per quest'immobile sono insufficienti, inaffidabili o contraddittori per proporre un'analisi attendibile.
Mercato immobiliare a Ceglie Messapica
Per quanto riguarda più in generale la città di Ceglie Messapica, sono presenti al momento oltre 500 annunci per
appartamenti in vendita (quasi il 20% dell'intera provincia) .
Per quanto riguarda la dinamica dei prezzi, negli ultimi 6 mesi i prezzi medi in tutta la città per appartamenti in vendita sono
sostanzialmente stabili (+0,17%).
NOVITÀ Il risultato che vedi dipende dai dati che siamo riusciti ad estrarre dall'annuncio: ottieni una stima più accuranta di questo immobile, inserendo dati più precisi.
N.B. L'Opinione di Caasa® è un servizio sperimentale realizzato tramite tecniche di Intelligenza Artificiale, fornito senza alcuna garanzia di correttezza e completezza. Leggi il disclaimer o segnalaci un problema.
IMMAGINI
IN SINTESI
DESCRIZIONE
con balcone con cantina con ascensore in asta giudiziaria
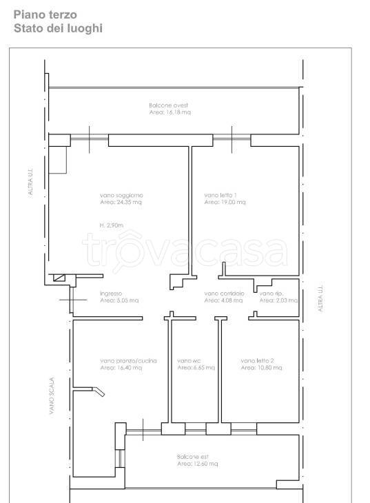
Vendesi in asta giudiziaria, appartamento di 115 mq con BALCONI, situato al 3° piano con ascensore, di uno stabile in Via Canonico Palazzo 37, nel centro storico di Ceglie Messapica, un borgo collinare molto autentico, ricco di vicoli in pietra, palazzi antichi e masserie tra uliveti e grotte carsiche. Dista 39 km da Taranto e 90 km in auto da Bari. VALORE DI PERIZIA - STIMA DI MERCATO € 93.500 La soluzione si estende su una superficie di 105 mq, ed è composta da: - ingresso, - soggiorno, - cucina con sala da pranzo, - 2 camere da letto, - un bagno, - corridoio, - ripostiglio. - 2 BALCONI con una superficie totale di 30 mq. OTTIMO RAPPORTO €/mq considerando le quotazioni della zona. Il prezzo a cui ci si riferisce è l’OFFERTA MINIMA da presentare per partecipare. CONTATTACI AL N. 375.785. 21.70 PER FISSARE UN APPUNTAMENTO PRESSO LA NOSTRA SEDE DI LECCE. Siamo anche disponibili presso le nostre sedi di CAGLIARI, BARI, TARANTO, LIVORNO, FIRENZE, BRESCIA E MILANO. I dati inseriti sono stati estratti dalla perizia e dell'avviso di vendita. Per visionare le FOTO INTERNE e avere MAGGIORI INFORMAZIONI sull’immobile, prego contattare telefonicamente per fissare un APPUNTAMENTO nelle nostre sedi. Il team di AVVOCATI e PROFESSIONISTI IMMOBILIARI di Valore Aggiunto Consulting sarà lieto di spiegarvi i vantaggi di questa ed altre opportunità presenti, offrendovi il servizio più completo sul mercato, prevenendo ogni problema. Infatti, ci occuperemo di: •Effettuare uno STUDIO APPROFONDITO della perizia e degli altri documenti della procedura •Organizzare per voi il SOPRALLUOGO sull’immobile •Pianificare e redigere l’OFFERTA DI ACQUISTO (anche per procedure telematiche) •Consigliarvi le MIGLIORI STRATEGIE per avere successo in sede di gara •Vi indichiamo convenzioni per il MUTUO •Vi supportiamo nelle scelte di intestazione della proprietà •Vi assistiamo nella LIBERAZIONE dell'immobile •Prepariamo l’ANALISI DI MERCATO sull’immobile •Pianifichiamo l’aspetto FISCALE dell’acquisto •Valutazione fattibilità SALDO e STRALCIO, […]

