Valutazione immobiliare indipendente, accurata e gratuita
Appartamento in vendita a Canosa di Puglia a 165.000 € (cod.652a2b5d)
Caasa non ha sufficienti informazioni per commentare l'appartamento in vendita a Canosa di Puglia - 652a2b5d.
Analisi immobiliare
I dati in posseso di Caasa per quest'immobile sono insufficienti, inaffidabili o contraddittori per proporre un'analisi attendibile.
Mercato immobiliare a Canosa di Puglia
Per quanto riguarda più in generale la città di Canosa di Puglia, sono presenti al momento più di 300 annunci per
appartamenti in vendita (meno del 10% dell'intera provincia) .
Relativamente alla dinamica dei prezzi, possiamo dire che negli ultimi 6 mesi i prezzi medi in tutta la città per appartamenti in vendita sono
in deciso aumento (+7,74%).
NOVITÀ Il risultato che vedi dipende dai dati che siamo riusciti ad estrarre dall'annuncio: ottieni una stima più accuranta di questo immobile, inserendo dati più precisi.
N.B. L'Opinione di Caasa® è un servizio sperimentale realizzato tramite tecniche di Intelligenza Artificiale, fornito senza alcuna garanzia di correttezza e completezza. Leggi il disclaimer o segnalaci un problema.
IMMAGINI
IN SINTESI
PROPOSTO DA:
Soluzione Casa di Michele Pinnelli
DESCRIZIONE
da ristrutturare da ristrutturare
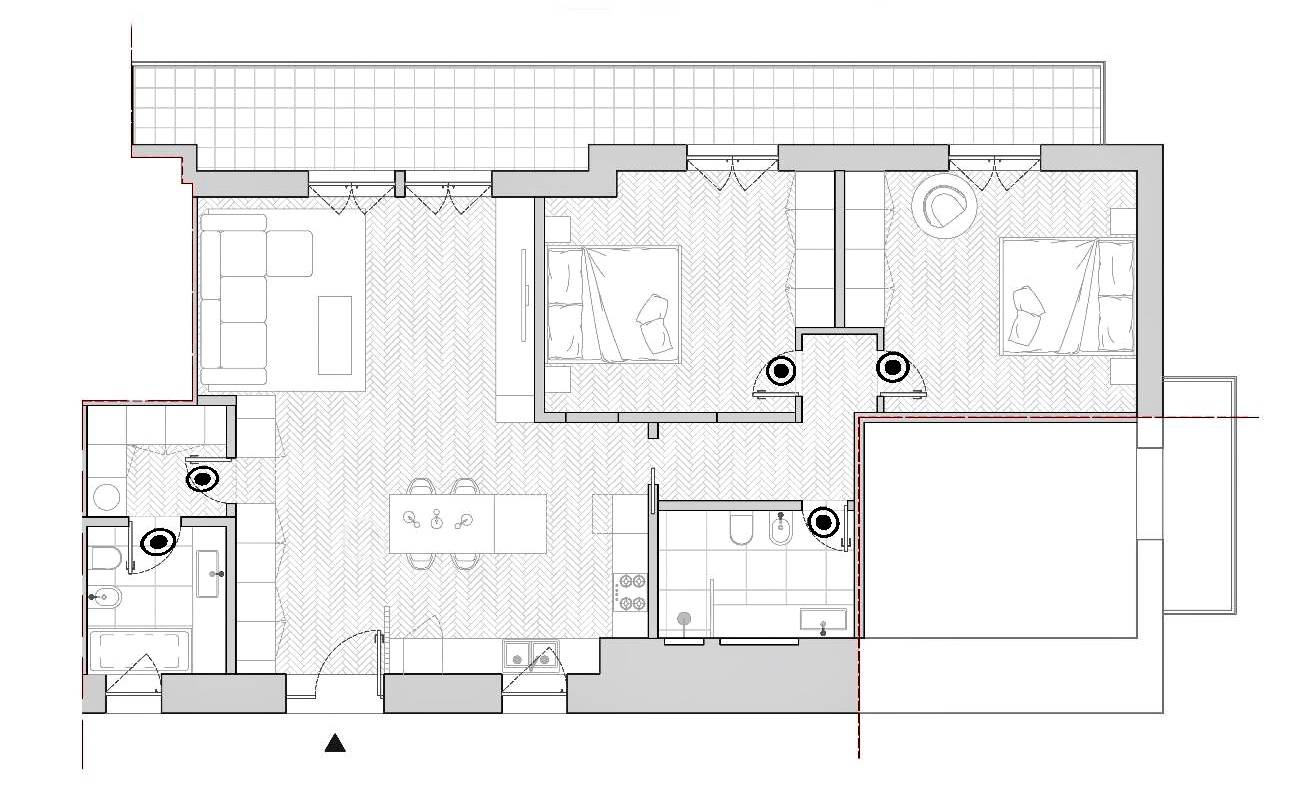
In via Kennedy angolo via Imbriani, proponiamo la vendita di un'appartamento su di un unico livello al primo piano composto da ampio living con cucina a vista, due camere da letto e bagno. La casa da ristrutturare, ma avendo gli impianti separati e una corte interna da cui si accede la rendono indipendente. Ottimo per un'abitazione prestigiosa o uno studio associato, La casa ha gi un progetto di ristrutturazione a prezzi accessibili, come mostrato nell'esempio delle foto. - SC9543232



