Valutazione immobiliare indipendente, accurata e gratuita
Locale commerciale in vendita a Bisceglie a 398.250 € (cod.650b0d1c)
Caasa non ha sufficienti informazioni per commentare il locale commerciale in vendita a Bisceglie - 650b0d1c.
Analisi immobiliare
I dati in posseso di Caasa per quest'immobile sono insufficienti, inaffidabili o contraddittori per proporre un'analisi attendibile.
Mercato immobiliare a Bisceglie
Per quanto riguarda più in generale la città di Bisceglie, sono presenti al momento più di cinquanta annunci per
locali commerciali in vendita (quasi il 20% dell'intera provincia)
e il maggior numero di annunci per questa tipologia sono relativi alla zona di Centro Città.
Per quanto riguarda la dinamica dei prezzi, negli ultimi 6 mesi i prezzi medi in tutta la città per locali commerciali in vendita sono
in sostanziale aumento (+7,46%).
NOVITÀ Il risultato che vedi dipende dai dati che siamo riusciti ad estrarre dall'annuncio: ottieni una stima più accuranta di questo immobile, inserendo dati più precisi.
N.B. L'Opinione di Caasa® è un servizio sperimentale realizzato tramite tecniche di Intelligenza Artificiale, fornito senza alcuna garanzia di correttezza e completezza. Leggi il disclaimer o segnalaci un problema.
IMMAGINI
IN SINTESI
DESCRIZIONE
in asta giudiziaria
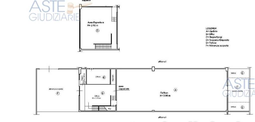
Vendesi in asta giudiziaria, OPIFICIO di MODERNA COSTRUZIONE, di 791 mq complessivi (h.5 mt) disposto su due livelli, con PIAZZALE, ubicato a Bisceglie, alla Via Praga s.n. (ex S.S. 16 Km.771 + 200), facilmente accessibile per mezzi pesanti. A circa 2 km dal centro, 4 km dal casello A14 Trani/Bisceglie e 2,5 km dal porto. VALORE DI PERIZIA - STIMA DI MERCATO € 531.000 L'opificio, ad uso artigianale/produttivo, con altezza di circa 5 mt, è composto da due fabbricati comunicanti tra loro, di circa 348 mq complessivi ciascuno, costituito da tre zone funzionali al piano terra e due ambienti al piano primo, oltre servizi e aree esterne. - Al piano terra si ha un primo ingresso, per il tramite della pertinenza scoperta appena descritta, alla zona reception e uffici. - Il piano superiore è adibito ad open space e sala riunioni. Dalla sala riunioni troviamo una porta che consente il passaggio nel secondo capannone, adibito a zona deposito. Qui è presente un'ulteriore scala che permette l'accesso alla parte superiore adibita a showroom. La zona retrostante la zona uffici invece ospita la produzione vera e propria. Sia nella zona open space che le scale di accesso hanno ampie vetrate che permettono di vedere dagli uffici le zone retrostanti dei capannoni. Nelle zone antistanti a doppia altezza, sono presenti anche due bagni (uno in ogni subalterno). Un ulteriore bagno è presente in fondo al capannone adibito a magazzino, assieme ad un ulteriore deposito posto al di sopra dello stesso bagno, a cui si accede per il tramite di una scala a chiocciola. Completa il capannone, un PIAZZALE di pertinenza di circa 200 mq. OTTIMO RAPPORTO €/mq considerando le quotazioni della zona. Il prezzo a cui ci si riferisce è l’OFFERTA MINIMA da presentare per partecipare. CONTATTACI AL N.375.785.21.70 PER FISSARE UN APPUNTAMENTO PRESSO LA NOSTRA SEDE DI BARI. Siamo anche disponibili presso le nostre sedi di CAGLIARI, LECCE, TARANTO, LIVORNO, FIRENZE, BRESCIA E MILANO. Per visionare le FOTO INTERNE e avere MAGGIORI INFORMAZIONI sull’imm[…]

