Valutazione immobiliare indipendente, accurata e gratuita
Appartamento in vendita a Barletta in zona Centro Città a 111.450 € (cod.65a46887)
Caasa non ha sufficienti informazioni per commentare l'appartamento a Barletta in zona Centro Città - 65a46887.
Analisi immobiliare
I dati in posseso di Caasa per quest'immobile sono insufficienti, inaffidabili o contraddittori per proporre un'analisi attendibile.
Mercato immobiliare a Barletta
Per quanto riguarda più in generale la città di Barletta, sono presenti al momento oltre 500 annunci per
appartamenti in vendita (quasi il 20% dell'intera provincia)
e il maggior numero di annunci per questa tipologia sono relativi alla zona di Settefrati, mentre nella zona di Centro Città è presente un numero significativamente inferiore di annunci.
La richiesta media nella zona dove sorge l'appartamento (Centro Città pressi Via Antonio Nanula) è pari a
1.570 €/m², molto vicina ai valori della zona Patalini che sono i più alti della città .
La dinamica dei prezzi in tutta la città mostra che negli ultimi 6 mesi, i prezzi per appartamenti in vendita sono
sostanzialmente stabili (+0,58%).
NOVITÀ Il risultato che vedi dipende dai dati che siamo riusciti ad estrarre dall'annuncio: ottieni una stima più accuranta di questo immobile, inserendo dati più precisi.
N.B. L'Opinione di Caasa® è un servizio sperimentale realizzato tramite tecniche di Intelligenza Artificiale, fornito senza alcuna garanzia di correttezza e completezza. Leggi il disclaimer o segnalaci un problema.
IMMAGINI
IN SINTESI
DESCRIZIONE
di nuova costruzione di nuova costruzione in asta giudiziaria
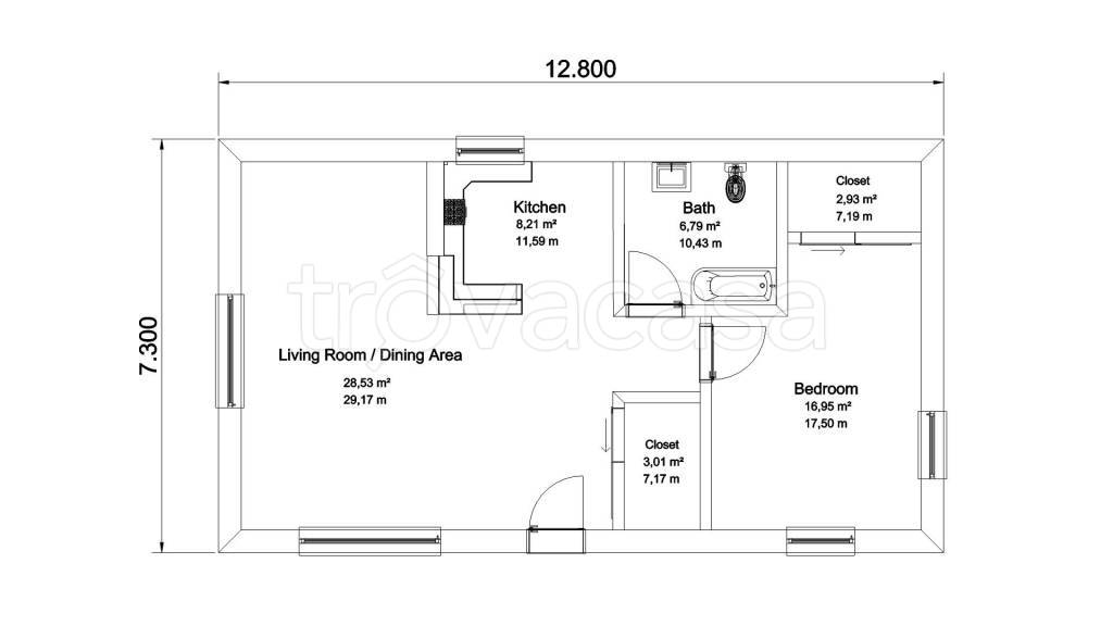
Asta appartamento a Barletta (BT) [SY612742] Via San Ruggiero, 76121 Barletta BT, Italia Piena proprietà per la quota di 1/1 dell'abitazione posta al primo e secondo piano di un piccolo edificio, per una superficie commerciale complessiva di mq. 109, […]
