Valutazione immobiliare indipendente, accurata e gratuita
Negozio in vendita ad Andria a 255.000 € (cod.658864c9)
Caasa non ha sufficienti informazioni per commentare il negozio in vendita ad Andria - 658864c9.
Analisi immobiliare
I dati in posseso di Caasa per quest'immobile sono insufficienti, inaffidabili o contraddittori per proporre un'analisi attendibile.
Mercato immobiliare ad Andria
Per quanto riguarda più in generale la città di Andria, sono presenti al momento più di 150 annunci per
negozi in vendita (meno di un terzo dell'intera provincia)
e il maggior numero di annunci per questa tipologia sono relativi alla zona di Centro Storico.
Vedi altre informazioni direttamente su
Mercato-Immobiliare.info
NOVITÀ Il risultato che vedi dipende dai dati che siamo riusciti ad estrarre dall'annuncio: ottieni una stima più accuranta di questo immobile, inserendo dati più precisi.
N.B. L'Opinione di Caasa® è un servizio sperimentale realizzato tramite tecniche di Intelligenza Artificiale, fornito senza alcuna garanzia di correttezza e completezza. Leggi il disclaimer o segnalaci un problema.
IMMAGINI
IN SINTESI
PROPOSTO DA:
bat real state
DESCRIZIONE
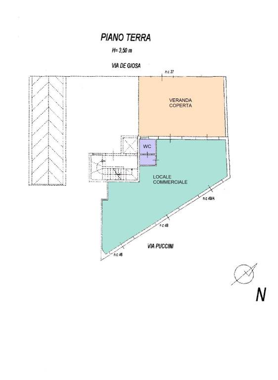
Proponiamo in vendita un prestigioso locale commerciale di 100 mq, situato in una posizione strategica su una strada ad alta densità di passaggio veicolare e pedonale. Questo immobile, dotato di doppia esposizione, garantisce una notevole visibilità grazie a ben tre ampie vetrine fronte strada. Il locale è completato da una veranda coperta di 60 mq, che rappresenta un valore aggiunto alla proposta. L'immobile è attualmente locato a un'attività ben avviata, garantendo un'ottima rendita mensile, pertanto rappresenta un investimento sicuro e interessante, grazie alla solidità dell'inquilino e alla posizione strategica del locale. In sintesi, questo locale commerciale è un'opzione imperdibile per chi cerca un investimento proficuo in una zona ad alta visibilità e con un'ottima affluenza. Per ulteriori informazioni o per prenotare una visita, non esitate a contattare l’Agenzia Immobiliare DOMUS re. Saremo lieti di assistervi nella scelta del vostro nuovo locale. Affidare il tuo immobile a DOMUS re significa avere al tuo fianco un team di professionisti pronti a supportarti in ogni fase della vendita, con serietà, competenza e trasparenza. Siamo qui per offrirti un servizio completo e dedicato, mettendo al centro le tue esigenze. E la cosa migliore? Tutto questo è completamente GRATUITO! Ecco cosa facciamo per te: ? Valutazione analitica dell’immobile ? Verifica approfondita della documentazione per garantirne la regolare commerciabilità ? Richiesta di planimetrie catastali e visure storiche ? Annunci curati e dettagliati per valorizzare al meglio il tuo immobile ? Pubblicità sulle nostre riviste dedicate ? Sponsorizzazione sui principali portali immobiliari e sui nostri social ? Accesso alla nostra banca dati aggiornata quotidianamente ? Assistenza e consulenza fino al rogito notarile Con DOMUS re nulla è lasciato al caso: selezioniamo con cura ogni immobile, ne curiamo ogni dettaglio e lo proponiamo in esclusiva, proprio perché esclusive sono le attenzioni che riserviamo ai nostri clienti. Affidaci il tuo imm[…]

