Valutazione immobiliare indipendente, accurata e gratuita
Appartamento in vendita ad Andria a 160.000 € (cod.6552befa)
Caasa non ha sufficienti informazioni per commentare l'appartamento in vendita ad Andria - 6552befa.
Analisi immobiliare
I dati in posseso di Caasa per quest'immobile sono insufficienti, inaffidabili o contraddittori per proporre un'analisi attendibile.
Mercato immobiliare ad Andria
Per quanto riguarda più in generale la città di Andria, sono presenti al momento circa mille annunci per
appartamenti in vendita (meno di un terzo dell'intera provincia)
e il maggior numero di annunci per questa tipologia sono relativi alla zona di Centro Storico.
Possiamo inoltre considerare che in tutta la città negli ultimi 6 mesi, i prezzi per appartamenti in vendita sono
in leggero aumento (+2,46%).
NOVITÀ Il risultato che vedi dipende dai dati che siamo riusciti ad estrarre dall'annuncio: ottieni una stima più accuranta di questo immobile, inserendo dati più precisi.
N.B. L'Opinione di Caasa® è un servizio sperimentale realizzato tramite tecniche di Intelligenza Artificiale, fornito senza alcuna garanzia di correttezza e completezza. Leggi il disclaimer o segnalaci un problema.
IMMAGINI
IN SINTESI
PROPOSTO DA:
IMMOBILIARE CASTELLO di LOMUSCIO RICCARDO
DESCRIZIONE
con balcone senza ascensore
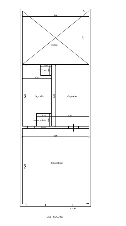
Scopri un'opportunità unica nel cuore di Andria!! Ti presentiamo un lotto edificabile residenziale di ben 300 mq, situato in una posizione strategica a pochi passi tra Via Ospedaletto e la zona PIP. Questo terreno è attualmente composto da circa 200 mq utilizzati come deposito/laboratorio, oltre a uno spazio esterno retrostante di circa 100 mq, ideale per creare aree verdi o parcheggi. Con regolare licenza edilizia, hai l'opportunità di costruire un fabbricato indipendente fino a 250 mq distribuiti su più livelli. In alternativa, puoi optare per realizzare un piccolo condominio con due appartamenti da 100 mq ciascuno e uno aggiuntivo da 50 mq, completati da verande e balconi che offriranno spazi all'aperto perfetti per il relax. La posizione del terreno è altamente favorevole: si trova vicino ai principali servizi della città e alle vie di comunicazione più importanti. È l'ideale sia per chi desidera investire nella propria abitazione che per sviluppatori immobiliari interessati a progetti residenziali. Non perdere questa occasione imperdibile






