Valutazione immobiliare indipendente, accurata e gratuita
Appartamento in vendita ad Andria a 190.000 € (cod.6533ddc9)
Caasa non ha sufficienti informazioni per commentare l'appartamento in vendita ad Andria - 6533ddc9.
Analisi immobiliare
I dati in posseso di Caasa per quest'immobile sono insufficienti, inaffidabili o contraddittori per proporre un'analisi attendibile.
Mercato immobiliare ad Andria
Per quanto riguarda più in generale la città di Andria, sono presenti al momento ben circa mille annunci per
appartamenti in vendita (meno di un terzo dell'intera provincia)
e il maggior numero di annunci per questa tipologia sono relativi alla zona di Centro Storico.
Relativamente alla dinamica dei prezzi, possiamo dire che negli ultimi 6 mesi i prezzi medi in tutta la città per appartamenti in vendita sono
in sostanziale aumento (+6,33%).
NOVITÀ Il risultato che vedi dipende dai dati che siamo riusciti ad estrarre dall'annuncio: ottieni una stima più accuranta di questo immobile, inserendo dati più precisi.
N.B. L'Opinione di Caasa® è un servizio sperimentale realizzato tramite tecniche di Intelligenza Artificiale, fornito senza alcuna garanzia di correttezza e completezza. Leggi il disclaimer o segnalaci un problema.
IMMAGINI
IN SINTESI
PROPOSTO DA:
Élite Luxury real estate
Viale Don Luigi Sturzo, 1, Andria (BT)
Verificata da Caasa®
DESCRIZIONE
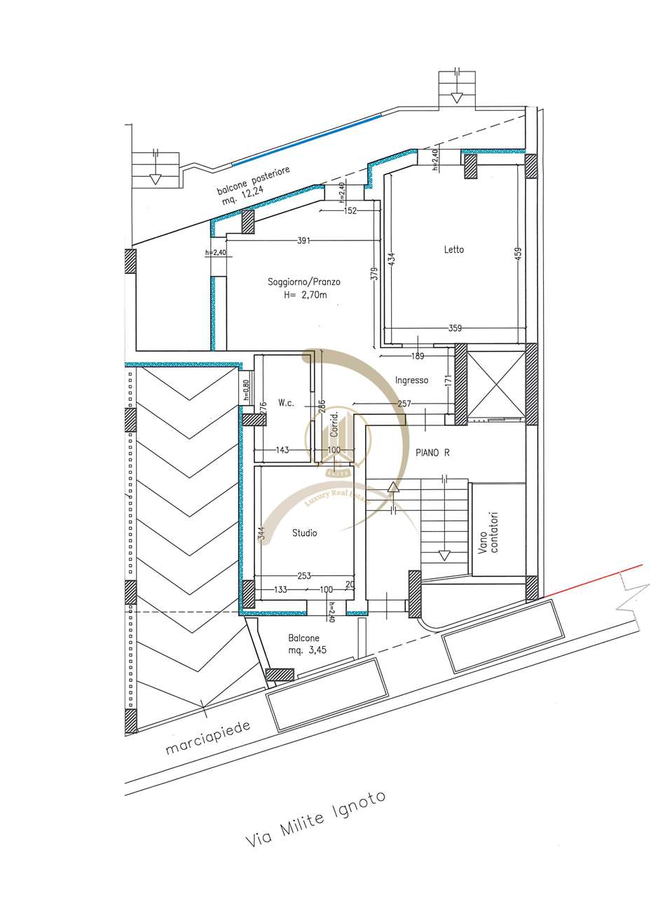
di nuova costruzione con posto auto con balcone di nuova costruzione
Proponiamo in vendita appartamenti di nuova costruzione, in fase di completamento, situati in una delle zone più richieste e apprezzate della città, precisamente in Via Milite Ignoto. Soluzioni ideali per chi è alla ricerca di una residenza moderna, luminosa e funzionale, in posizione strategica, a breve distanza dal centro e nelle immediate vicinanze di spazi verdi, perfette sia come prima abitazione sia come investimento di valore. Le ultime disponibilità riguardano appartamenti angolari, caratterizzati da grande luminosità e ottima vivibilità. Le diverse soluzioni presentano metrature e distribuzioni differenti, tutte dotate di balconi vivibili, pensati come naturale estensione degli spazi interni. Gli immobili sono rifiniti con materiali di qualità, con particolare attenzione ai dettagli, al comfort abitativo e alla qualità costruttiva. Disponibilità attuali: Piano rialzato di circa 70 mq interni Quarto piano di circa 95 mq interni Quinto piano di circa 85 mq interni Tutte le unità sono realizzate in classe energetica A4 e dotate di box auto. PREZZO A PARTIRE DA 190.000


