Valutazione immobiliare indipendente, accurata e gratuita
Appartamento in vendita a Turi a 31.800 € (cod.6581dae1)
Caasa non ha sufficienti informazioni per commentare l'appartamento in vendita a Turi - 6581dae1.
Analisi immobiliare
I dati in posseso di Caasa per quest'immobile sono insufficienti, inaffidabili o contraddittori per proporre un'analisi attendibile.
Mercato immobiliare a Turi
Per quanto riguarda più in generale il comune di Turi, sono presenti al momento più di 200 annunci per
appartamenti in vendita (meno del 5% dell'intera provincia) .
Relativamente alla dinamica dei prezzi, possiamo dire che negli ultimi 6 mesi i prezzi medi in tutto il comune per appartamenti in vendita sono
sostanzialmente stabili (-0,40%).
NOVITÀ Il risultato che vedi dipende dai dati che siamo riusciti ad estrarre dall'annuncio: ottieni una stima più accuranta di questo immobile, inserendo dati più precisi.
N.B. L'Opinione di Caasa® è un servizio sperimentale realizzato tramite tecniche di Intelligenza Artificiale, fornito senza alcuna garanzia di correttezza e completezza. Leggi il disclaimer o segnalaci un problema.
IMMAGINI
IN SINTESI
DESCRIZIONE
di nuova costruzione con balcone con cantina in asta giudiziaria di nuova costruzione
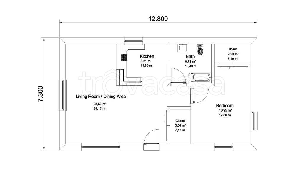
Asta appartamento a Turi (BA) [SY480940] Via Giovanni di Pinto, 6, 70010 Turi BA, Italia Appartamento al terzo piano sul composto di quattro vani ed accessori, ingresso, salone, corridoio di disimpegno, tre vani utili, cucina, bagno, bagno di servizi […]
