Valutazione immobiliare indipendente, accurata e gratuita
Appartamento in vendita a Triggiano a 117.618 € (cod.65725241)
Caasa non ha sufficienti informazioni per commentare l'appartamento in vendita a Triggiano - 65725241.
Analisi immobiliare
I dati in posseso di Caasa per quest'immobile sono insufficienti, inaffidabili o contraddittori per proporre un'analisi attendibile.
Mercato immobiliare a Triggiano
Per quanto riguarda più in generale la città di Triggiano, sono presenti al momento più di 300 annunci per
appartamenti in vendita (meno del 5% dell'intera provincia) .
Relativamente alla dinamica dei prezzi, possiamo dire che negli ultimi 6 mesi i prezzi medi in tutta la città per appartamenti in vendita sono
in sostanziale aumento (+6,70%).
NOVITÀ Il risultato che vedi dipende dai dati che siamo riusciti ad estrarre dall'annuncio: ottieni una stima più accuranta di questo immobile, inserendo dati più precisi.
N.B. L'Opinione di Caasa® è un servizio sperimentale realizzato tramite tecniche di Intelligenza Artificiale, fornito senza alcuna garanzia di correttezza e completezza. Leggi il disclaimer o segnalaci un problema.
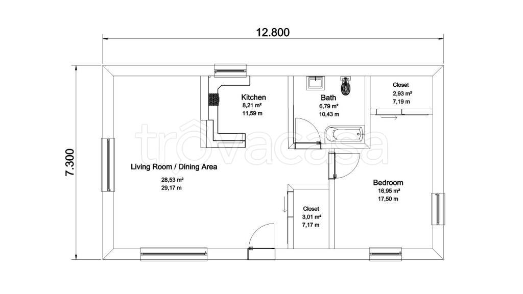
IMMAGINI
IN SINTESI
DESCRIZIONE
di nuova costruzione con cantina di nuova costruzione in asta giudiziaria
Asta appartamento a Triggiano (BA) [SY606948] Via Marco Polo, 10, 70019 Triggiano BA, Italia Piena proprietà di appartamento ubicato al primo piano, interno 3 — scala “A”, con ingresso dalla porta a sinistra salendo le scale condominiali, composto da […]
