Valutazione immobiliare indipendente, accurata e gratuita
Appartamento in vendita a Santeramo in Colle a 13.000 € (cod.6534b005)
Caasa non ha sufficienti informazioni per commentare l'appartamento in vendita a Santeramo in Colle - 6534b005.
Analisi immobiliare
I dati in posseso di Caasa per quest'immobile sono insufficienti, inaffidabili o contraddittori per proporre un'analisi attendibile.
Mercato immobiliare a Santeramo in Colle
Per quanto riguarda più in generale la città di Santeramo in Colle, sono presenti al momento più di 200 annunci per
appartamenti in vendita (meno del 5% dell'intera provincia) .
Relativamente alla dinamica dei prezzi, possiamo dire che negli ultimi 6 mesi i prezzi medi in tutta la città per appartamenti in vendita sono
sostanzialmente stabili (+1,18%).
NOVITÀ Il risultato che vedi dipende dai dati che siamo riusciti ad estrarre dall'annuncio: ottieni una stima più accuranta di questo immobile, inserendo dati più precisi.
N.B. L'Opinione di Caasa® è un servizio sperimentale realizzato tramite tecniche di Intelligenza Artificiale, fornito senza alcuna garanzia di correttezza e completezza. Leggi il disclaimer o segnalaci un problema.
IMMAGINI
IN SINTESI
PROPOSTO DA:
Centro Aste Bari
DESCRIZIONE
di nuova costruzione in asta giudiziaria di nuova costruzione
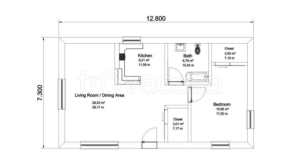
Asta appartamento a Santeramo in Colle (BA) [SY488732] Via Dardanelli, 9, 70029 Santeramo In Colle BA, Italia Immobile residenziale composto da un unico vano a primo piano, di circa 38 mq netti e circa 45 mq catastali. Vi è bagno e sull’estradosso de […]
