Valutazione immobiliare indipendente, accurata e gratuita
Appartamento in vendita a Santeramo in Colle a 40.223 € (cod.6534aff7)
Caasa non ha sufficienti informazioni per commentare l'appartamento in vendita a Santeramo in Colle - 6534aff7.
Analisi immobiliare
I dati in posseso di Caasa per quest'immobile sono insufficienti, inaffidabili o contraddittori per proporre un'analisi attendibile.
Mercato immobiliare a Santeramo in Colle
Per quanto riguarda più in generale la città di Santeramo in Colle, sono presenti al momento più di 200 annunci per
appartamenti in vendita (meno del 5% dell'intera provincia) .
La dinamica dei prezzi in tutta la città mostra che negli ultimi 6 mesi, i prezzi per appartamenti in vendita sono
sostanzialmente stabili (+1,18%).
NOVITÀ Il risultato che vedi dipende dai dati che siamo riusciti ad estrarre dall'annuncio: ottieni una stima più accuranta di questo immobile, inserendo dati più precisi.
N.B. L'Opinione di Caasa® è un servizio sperimentale realizzato tramite tecniche di Intelligenza Artificiale, fornito senza alcuna garanzia di correttezza e completezza. Leggi il disclaimer o segnalaci un problema.
IMMAGINI
IN SINTESI
PROPOSTO DA:
Centro Aste Bari
DESCRIZIONE
di nuova costruzione in asta giudiziaria di nuova costruzione con balcone
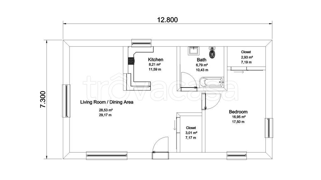
Asta appartamento a Santeramo in Colle (BA) [SY583594] Via Laterza, 104, 70029 Santeramo in Colle BA, Italia Abitazione composta da cucina soggiorno tipo open-space, due camere da letto e bagno, dotata di due balconi con affaccio sulla via Pisani e s […]
