Valutazione immobiliare indipendente, accurata e gratuita
Appartamento in vendita a Sammichele di Bari a 44.415 € (cod.65948c16)
Caasa non ha sufficienti informazioni per commentare l'appartamento in vendita a Sammichele di Bari - 65948c16.
Analisi immobiliare
I dati in posseso di Caasa per quest'immobile sono insufficienti, inaffidabili o contraddittori per proporre un'analisi attendibile.
Mercato immobiliare a Sammichele di Bari
Per quanto riguarda più in generale il comune di Sammichele di Bari, sono presenti al momento più di cinquanta annunci per
appartamenti in vendita (meno dell'1% dell'intera provincia) .
Possiamo inoltre considerare che in tutto il comune negli ultimi 6 mesi, i prezzi per appartamenti in vendita sono
in sostanziale aumento (+7,33%).
NOVITÀ Il risultato che vedi dipende dai dati che siamo riusciti ad estrarre dall'annuncio: ottieni una stima più accuranta di questo immobile, inserendo dati più precisi.
N.B. L'Opinione di Caasa® è un servizio sperimentale realizzato tramite tecniche di Intelligenza Artificiale, fornito senza alcuna garanzia di correttezza e completezza. Leggi il disclaimer o segnalaci un problema.
IMMAGINI
IN SINTESI
DESCRIZIONE
di nuova costruzione con terrazza in asta giudiziaria con cantina di nuova costruzione con cortile
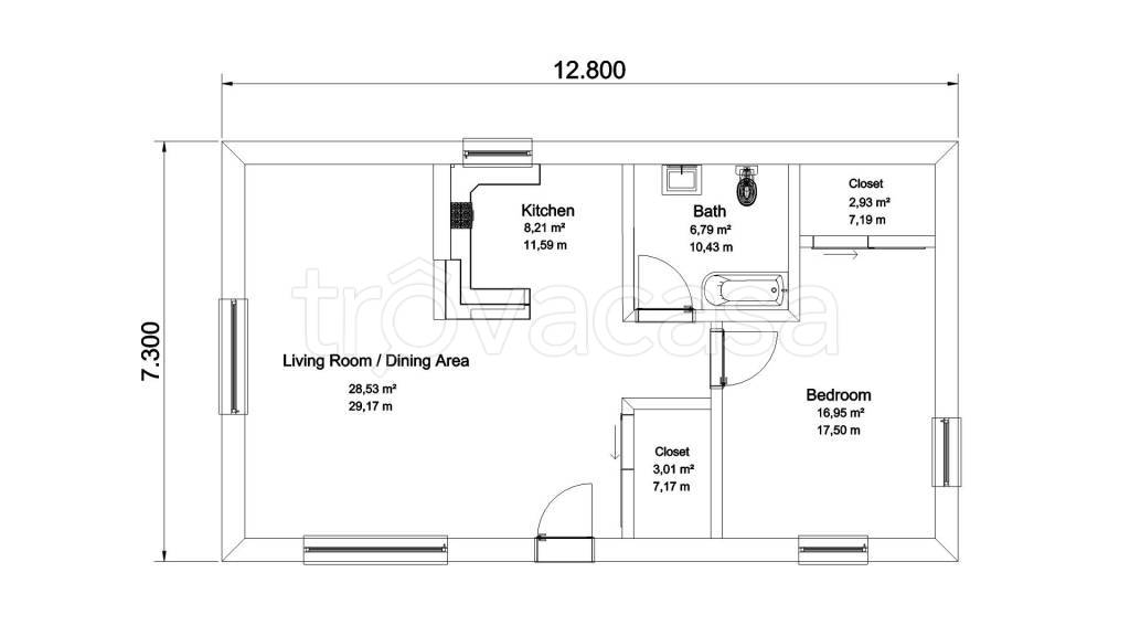
Asta appartamento a Sammichele di Bari (BA) [SY612567] Via Roma, 143/145, 70010 Sammichele di Bari BA, Italia Descrizione Immobile ad uso abitativo della superficie netta di mq. 94 composta da piano terra e primo piano, quest’ultimo costituito da ter […]
