Valutazione immobiliare indipendente, accurata e gratuita
Appartamento in vendita a Sammichele di Bari a 62.662 € (cod.6534afed)
Caasa non ha sufficienti informazioni per commentare l'appartamento in vendita a Sammichele di Bari - 6534afed.
Analisi immobiliare
I dati in posseso di Caasa per quest'immobile sono insufficienti, inaffidabili o contraddittori per proporre un'analisi attendibile.
Mercato immobiliare a Sammichele di Bari
Per quanto riguarda più in generale il comune di Sammichele di Bari, sono presenti al momento più di cinquanta annunci per
appartamenti in vendita (meno dell'1% dell'intera provincia) .
Relativamente alla dinamica dei prezzi, possiamo dire che negli ultimi 6 mesi i prezzi medi in tutto il comune per appartamenti in vendita sono
in forte aumento (+32,84%).
NOVITÀ Il risultato che vedi dipende dai dati che siamo riusciti ad estrarre dall'annuncio: ottieni una stima più accuranta di questo immobile, inserendo dati più precisi.
N.B. L'Opinione di Caasa® è un servizio sperimentale realizzato tramite tecniche di Intelligenza Artificiale, fornito senza alcuna garanzia di correttezza e completezza. Leggi il disclaimer o segnalaci un problema.
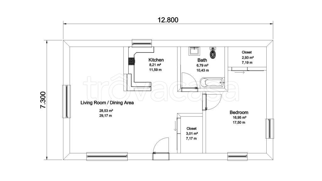
IMMAGINI
IN SINTESI
PROPOSTO DA:
Centro Aste Bari
DESCRIZIONE
di nuova costruzione con balcone in asta giudiziaria di nuova costruzione
Asta appartamento a Sammichele di Bari (BA) [SY557178] Vico Antonio Gramsci, 1, 70010 Sammichele di Bari BA, Italia Abitazione al piano terra - primo - interrato. Accanto al portoncino di ingresso, a mezzo di porta metallica si accede anche alla cant […]
