Valutazione immobiliare indipendente, accurata e gratuita
Appartamento in vendita a Rutigliano a 99.563 € (cod.657292de)
Caasa non ha sufficienti informazioni per commentare l'appartamento in vendita a Rutigliano - 657292de.
Analisi immobiliare
I dati in posseso di Caasa per quest'immobile sono insufficienti, inaffidabili o contraddittori per proporre un'analisi attendibile.
Mercato immobiliare a Rutigliano
Per quanto riguarda più in generale la città di Rutigliano, sono presenti al momento più di cento annunci per
appartamenti in vendita (meno dell'1% dell'intera provincia) .
Possiamo inoltre considerare che in tutta la città negli ultimi 6 mesi, i prezzi per appartamenti in vendita sono
in deciso aumento (+8,53%).
NOVITÀ Il risultato che vedi dipende dai dati che siamo riusciti ad estrarre dall'annuncio: ottieni una stima più accuranta di questo immobile, inserendo dati più precisi.
N.B. L'Opinione di Caasa® è un servizio sperimentale realizzato tramite tecniche di Intelligenza Artificiale, fornito senza alcuna garanzia di correttezza e completezza. Leggi il disclaimer o segnalaci un problema.
IMMAGINI
IN SINTESI
DESCRIZIONE
di nuova costruzione con balcone in asta giudiziaria di nuova costruzione
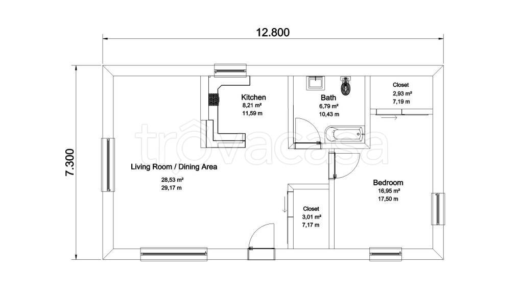
Asta appartamento a Rutigliano (BA) [SY586408] Via Vito Campanella, 24, 70018 Rutigliano BA, Italia Abitazione posta al piano primo e composta dal vano ingresso, dal soggiorno, dalla cucina, dal disimpegno, da due ripostigli, da tre camere da letto e […]
