Valutazione immobiliare indipendente, accurata e gratuita
Casa indipendente in vendita a Putignano a 327.511 € (cod.6562c4f9)
Caasa non ha sufficienti informazioni per commentare la casa indipendente in vendita a Putignano - 6562c4f9.
Analisi immobiliare
I dati in posseso di Caasa per quest'immobile sono insufficienti, inaffidabili o contraddittori per proporre un'analisi attendibile.
Mercato immobiliare a Putignano
Per quanto riguarda più in generale la città di Putignano, sono presenti al momento più di 300 annunci per
case indipendenti in vendita (meno del 5% dell'intera provincia) .
Relativamente alla dinamica dei prezzi, possiamo dire che negli ultimi 6 mesi i prezzi medi in tutta la città per case indipendenti in vendita sono
in leggera diminuzione (-2,95%).
NOVITÀ Il risultato che vedi dipende dai dati che siamo riusciti ad estrarre dall'annuncio: ottieni una stima più accuranta di questo immobile, inserendo dati più precisi.
N.B. L'Opinione di Caasa® è un servizio sperimentale realizzato tramite tecniche di Intelligenza Artificiale, fornito senza alcuna garanzia di correttezza e completezza. Leggi il disclaimer o segnalaci un problema.
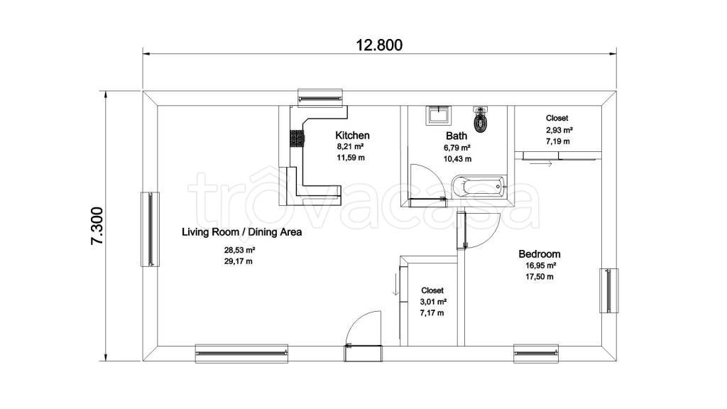
IMMAGINI
IN SINTESI
DESCRIZIONE
di nuova costruzione in asta giudiziaria con giardino di nuova costruzione
Asta appartamento a Putignano (BA) [SY500388] Strada Comunale Conca D'Oro, 70017 Putignano BA, Italia Villetta bifamiliare in corso di costruzione a Putignano (BA), Località Conca d'oro/Spine Rossine - LOTTO 9 Immobile in costruzione composto da n. 2 […]
