Valutazione immobiliare indipendente, accurata e gratuita
Appartamento in vendita a Putignano a 56.610 € (cod.6539c77f)
Caasa non ha sufficienti informazioni per commentare l'appartamento in vendita a Putignano - 6539c77f.
Analisi immobiliare
I dati in posseso di Caasa per quest'immobile sono insufficienti, inaffidabili o contraddittori per proporre un'analisi attendibile.
Mercato immobiliare a Putignano
Per quanto riguarda più in generale la città di Putignano, sono presenti al momento più di 300 annunci per
appartamenti in vendita (meno del 5% dell'intera provincia) .
La dinamica dei prezzi in tutta la città mostra che negli ultimi 6 mesi, i prezzi per appartamenti in vendita sono
in leggera diminuzione (-2,87%).
NOVITÀ Il risultato che vedi dipende dai dati che siamo riusciti ad estrarre dall'annuncio: ottieni una stima più accuranta di questo immobile, inserendo dati più precisi.
N.B. L'Opinione di Caasa® è un servizio sperimentale realizzato tramite tecniche di Intelligenza Artificiale, fornito senza alcuna garanzia di correttezza e completezza. Leggi il disclaimer o segnalaci un problema.
IMMAGINI
IN SINTESI
PROPOSTO DA:
Centro Aste Bari
DESCRIZIONE
di nuova costruzione in asta giudiziaria di nuova costruzione
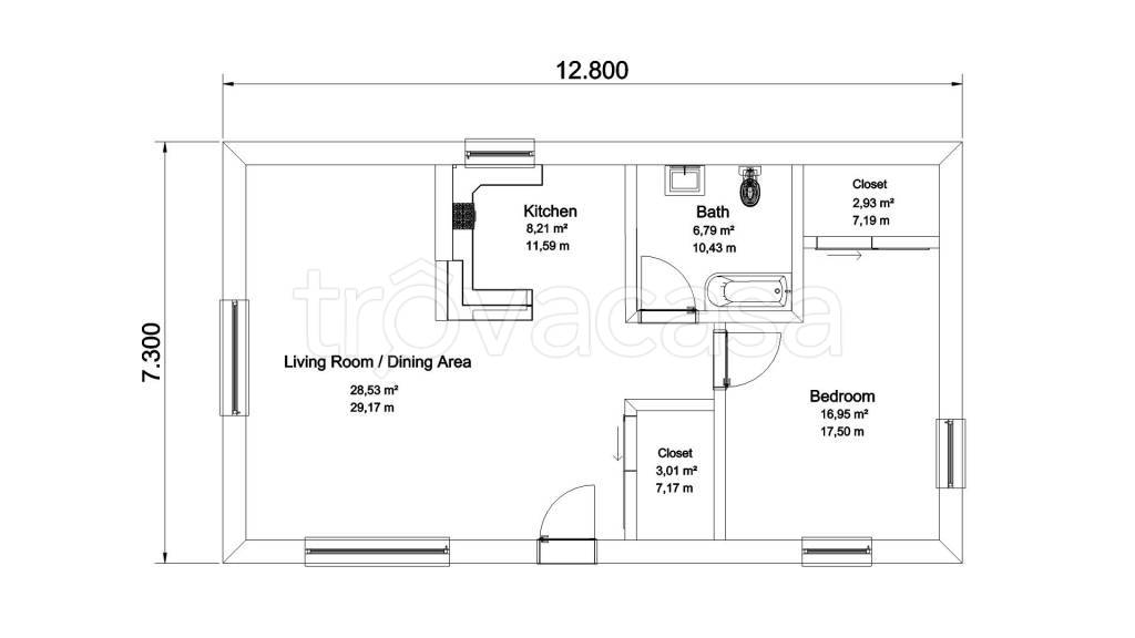
Asta appartamento a Putignano (BA) [SY491964] Via Derna, 12, 70017 Putignano BA, Italia Appartamento al primo piano consistenza 111 mq Proposta immobiliare in asta. Info dettagliate in agenzia o telefonicamente. Possibilita’ di Mutuo al 100% Per magg […]
