Valutazione immobiliare indipendente, accurata e gratuita
Appartamento in vendita a Noicattaro a 83.437 € (cod.65725230)
Caasa non ha sufficienti informazioni per commentare l'appartamento in vendita a Noicattaro - 65725230.
Analisi immobiliare
I dati in posseso di Caasa per quest'immobile sono insufficienti, inaffidabili o contraddittori per proporre un'analisi attendibile.
Mercato immobiliare a Noicattaro
Per quanto riguarda più in generale la città di Noicattaro, sono presenti al momento più di 200 annunci per
appartamenti in vendita (meno del 5% dell'intera provincia)
e il maggior numero di annunci per questa tipologia sono relativi alla zona di Parchitello.
Per quanto riguarda la dinamica dei prezzi, negli ultimi 6 mesi i prezzi medi in tutta la città per appartamenti in vendita sono
sostanzialmente stabili (-0,86%).
NOVITÀ Il risultato che vedi dipende dai dati che siamo riusciti ad estrarre dall'annuncio: ottieni una stima più accuranta di questo immobile, inserendo dati più precisi.
N.B. L'Opinione di Caasa® è un servizio sperimentale realizzato tramite tecniche di Intelligenza Artificiale, fornito senza alcuna garanzia di correttezza e completezza. Leggi il disclaimer o segnalaci un problema.
IMMAGINI
IN SINTESI
DESCRIZIONE
di nuova costruzione con posto auto con cantina in asta giudiziaria di nuova costruzione
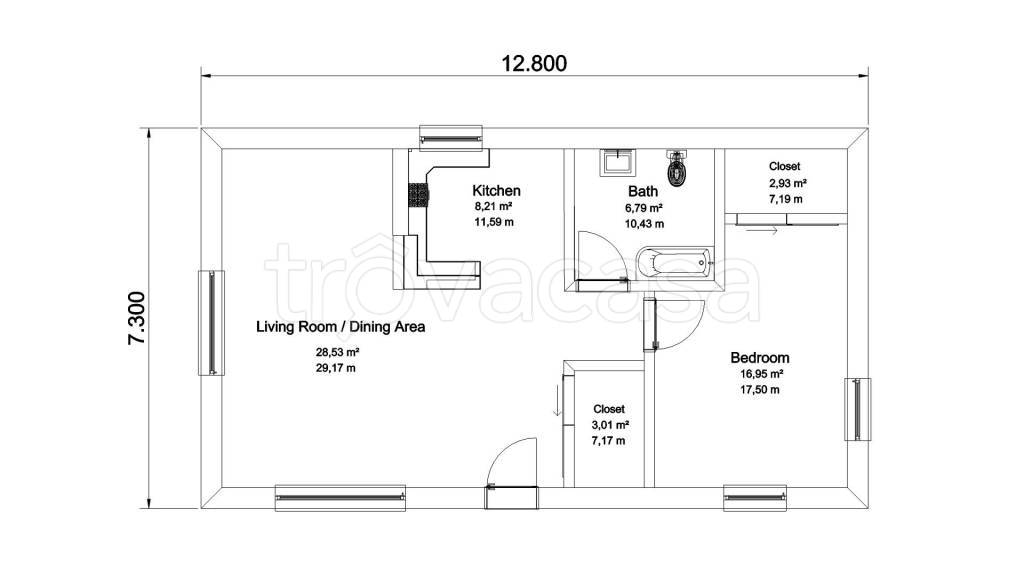
Asta appartamento a Noicattaro (BA) [SY606175] Via Ippolito Nievo, 3, 70016 Noicattaro BA, Italia Abitazione di tipo economico posto al piano secondo composto da ingresso soggiorno, cucina, due camere da letto, un bagno e ripostiglio. Al piano interr […]
