Valutazione immobiliare indipendente, accurata e gratuita
Casa indipendente in vendita a Noicattaro a 30.161 € (cod.65348eea)
Caasa non ha sufficienti informazioni per commentare la casa indipendente in vendita a Noicattaro - 65348eea.
Analisi immobiliare
I dati in posseso di Caasa per quest'immobile sono insufficienti, inaffidabili o contraddittori per proporre un'analisi attendibile.
Mercato immobiliare a Noicattaro
Per quanto riguarda più in generale la città di Noicattaro, sono presenti al momento più di 200 annunci per
case indipendenti in vendita (meno del 5% dell'intera provincia)
e il maggior numero di annunci per questa tipologia sono relativi alla zona di Parchitello.
Possiamo inoltre considerare che in tutta la città negli ultimi 6 mesi, i prezzi per case indipendenti in vendita sono
sostanzialmente stabili (-1,08%).
NOVITÀ Il risultato che vedi dipende dai dati che siamo riusciti ad estrarre dall'annuncio: ottieni una stima più accuranta di questo immobile, inserendo dati più precisi.
N.B. L'Opinione di Caasa® è un servizio sperimentale realizzato tramite tecniche di Intelligenza Artificiale, fornito senza alcuna garanzia di correttezza e completezza. Leggi il disclaimer o segnalaci un problema.
IMMAGINI
IN SINTESI
PROPOSTO DA:
Centro Aste Bari
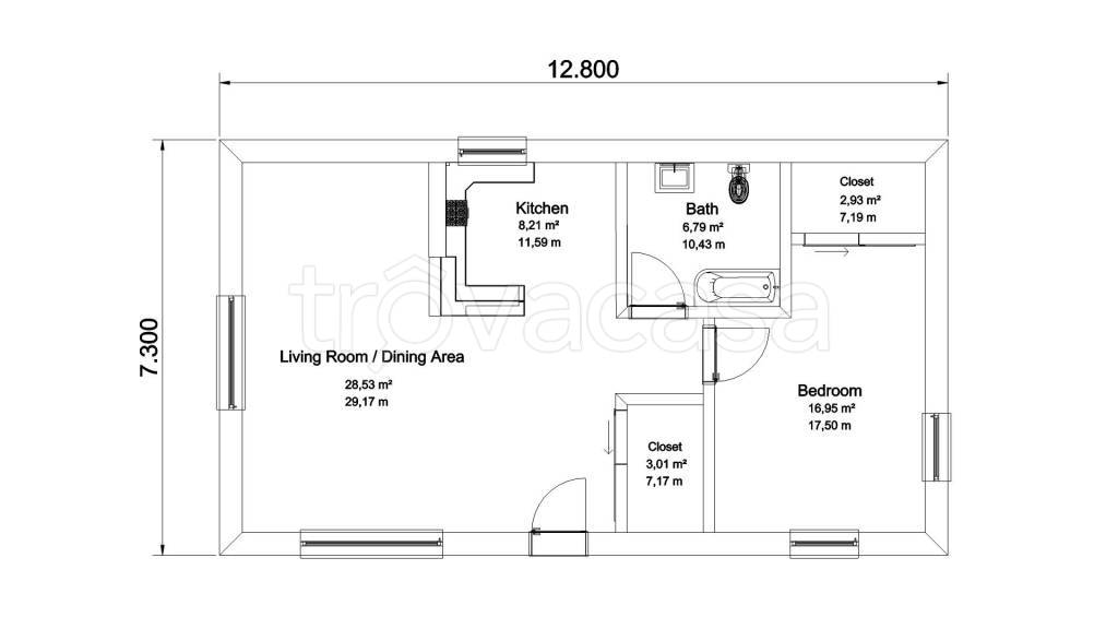
DESCRIZIONE
di nuova costruzione in asta giudiziaria di nuova costruzione
Asta appartamento a Noicattaro (BA) [SY589130] Via San Paolo, 17, 70016 Noicattaro BA, Italia Abitazione sita alla via San Paolo, e precisamente: abitazione composta da un vano al piano seminterrato cui si accede dal civico 17, un vano a piano terra […]
