Valutazione immobiliare indipendente, accurata e gratuita
Casa indipendente in vendita a Noci in zona Lamadacqua a 56.306 € (cod.6539bd64)
Caasa non ha sufficienti informazioni per commentare la casa indipendente a Noci in zona Lamadacqua - 6539bd64.
Analisi immobiliare
I dati in posseso di Caasa per quest'immobile sono insufficienti, inaffidabili o contraddittori per proporre un'analisi attendibile.
Mercato immobiliare a Noci
Per quanto riguarda più in generale la città di Noci, sono presenti al momento più di cento annunci per
case indipendenti in vendita (meno del 5% dell'intera provincia) .
Per quanto riguarda la dinamica dei prezzi, negli ultimi 6 mesi i prezzi medi in tutta la città per case indipendenti in vendita sono
in forte calo (-24,61%).
NOVITÀ Il risultato che vedi dipende dai dati che siamo riusciti ad estrarre dall'annuncio: ottieni una stima più accuranta di questo immobile, inserendo dati più precisi.
N.B. L'Opinione di Caasa® è un servizio sperimentale realizzato tramite tecniche di Intelligenza Artificiale, fornito senza alcuna garanzia di correttezza e completezza. Leggi il disclaimer o segnalaci un problema.
IMMAGINI
IN SINTESI
DESCRIZIONE
di nuova costruzione con giardino di nuova costruzione in asta giudiziaria
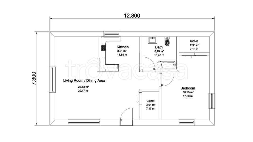
Asta appartamento a Noci (BA) [SY544678] Lamadacqua, 70015 Noci BA, Italia Piena proprietà di villino composto da quattro vani ed accessori al piano terra, con annesso forno, locale ad uso deposito, cisterna, pozzo nero e pertinenziale area esterna. […]
