Valutazione immobiliare indipendente, accurata e gratuita
Appartamento in vendita a Monopoli a 140.771 € (cod.653cdd1c)
Caasa non ha sufficienti informazioni per commentare l'appartamento in vendita a Monopoli - 653cdd1c.
Analisi immobiliare
I dati in posseso di Caasa per quest'immobile sono insufficienti, inaffidabili o contraddittori per proporre un'analisi attendibile.
Mercato immobiliare a Monopoli
Per quanto riguarda più in generale la città di Monopoli, sono presenti al momento oltre 500 annunci per
appartamenti in vendita (meno del 10% dell'intera provincia)
e il maggior numero di annunci per questa tipologia sono relativi alla zona di Centro Storico.
Per quanto riguarda la dinamica dei prezzi, negli ultimi 6 mesi i prezzi medi in tutta la città per appartamenti in vendita sono
in sostanziale aumento (+5,70%).
NOVITÀ Il risultato che vedi dipende dai dati che siamo riusciti ad estrarre dall'annuncio: ottieni una stima più accuranta di questo immobile, inserendo dati più precisi.
N.B. L'Opinione di Caasa® è un servizio sperimentale realizzato tramite tecniche di Intelligenza Artificiale, fornito senza alcuna garanzia di correttezza e completezza. Leggi il disclaimer o segnalaci un problema.
IMMAGINI
IN SINTESI
DESCRIZIONE
di nuova costruzione con terrazza con balcone di nuova costruzione con ascensore in asta giudiziaria
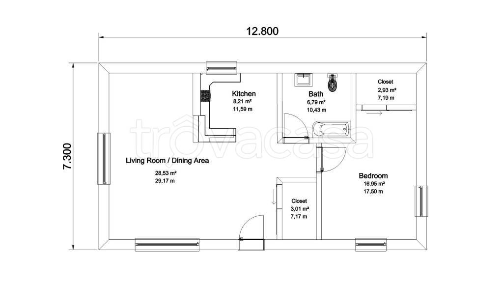
Asta appartamento a Monopoli (BA) [SY601920] Via Francesco Antonio Glianes, 70043 Monopoli BA, Italia Appartamento al piano primo dotato di ascensore composto da ampia zona giorno, cucina, disimpegno, tre camere e due bagni oltre a due ampi balconi, […]
