Valutazione immobiliare indipendente, accurata e gratuita
Casa indipendente in vendita a Monopoli in zona Centro Storico a 396.406 € (cod.653cdd12)
Caasa non ha sufficienti informazioni per commentare la casa indipendente a Monopoli in zona Centro Storico - 653cdd12.
Analisi immobiliare
I dati in posseso di Caasa per quest'immobile sono insufficienti, inaffidabili o contraddittori per proporre un'analisi attendibile.
Mercato immobiliare a Monopoli
Per quanto riguarda più in generale la città di Monopoli, sono presenti al momento oltre 500 annunci per
case indipendenti in vendita (meno del 10% dell'intera provincia)
e il maggior numero di annunci per questa tipologia sono relativi proprio alla zona di Centro Storico.
La richiesta media nella zona dove sorge la casa indipendente (Centro Storico pressi Via Giovanni Barnaba) è pari a
2.695 €/m² e ne fa la più pregiata della città .
Possiamo inoltre considerare che in tutta la città negli ultimi 6 mesi, i prezzi per case indipendenti in vendita sono
in sostanziale aumento (+6,08%).
NOVITÀ Il risultato che vedi dipende dai dati che siamo riusciti ad estrarre dall'annuncio: ottieni una stima più accuranta di questo immobile, inserendo dati più precisi.
N.B. L'Opinione di Caasa® è un servizio sperimentale realizzato tramite tecniche di Intelligenza Artificiale, fornito senza alcuna garanzia di correttezza e completezza. Leggi il disclaimer o segnalaci un problema.
IMMAGINI
IN SINTESI
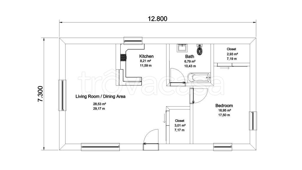
DESCRIZIONE
di nuova costruzione con terrazza con balcone di nuova costruzione in asta giudiziaria
Asta fabbricato a Monopoli (BA) [SY601925] Via Giovanni Barnaba, 18/20, 70043 Monopoli BA, Italia Complesso immobiliare, già adibito a filiale di banca, sito nel pieno centro dell'abitato a pochi passi dalla Piazza Vittorio Emanuele, composto da disi […]
