Valutazione immobiliare indipendente, accurata e gratuita
Appartamento in vendita a Monopoli a 274.893 € (cod.6539e04a)
Caasa non ha sufficienti informazioni per commentare l'appartamento in vendita a Monopoli - 6539e04a.
Analisi immobiliare
I dati in posseso di Caasa per quest'immobile sono insufficienti, inaffidabili o contraddittori per proporre un'analisi attendibile.
Mercato immobiliare a Monopoli
Per quanto riguarda più in generale la città di Monopoli, sono presenti al momento oltre 500 annunci per
appartamenti in vendita (meno del 10% dell'intera provincia)
e il maggior numero di annunci per questa tipologia sono relativi alla zona di Centro Storico.
Possiamo inoltre considerare che in tutta la città negli ultimi 6 mesi, i prezzi per appartamenti in vendita sono
in sostanziale aumento (+5,70%).
NOVITÀ Il risultato che vedi dipende dai dati che siamo riusciti ad estrarre dall'annuncio: ottieni una stima più accuranta di questo immobile, inserendo dati più precisi.
N.B. L'Opinione di Caasa® è un servizio sperimentale realizzato tramite tecniche di Intelligenza Artificiale, fornito senza alcuna garanzia di correttezza e completezza. Leggi il disclaimer o segnalaci un problema.
IMMAGINI
IN SINTESI
DESCRIZIONE
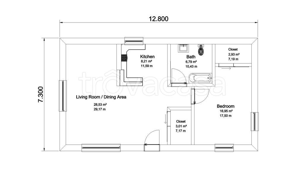
di nuova costruzione con giardino con posto auto di nuova costruzione in asta giudiziaria con garage con angolo cottura
Asta appartamento a Monopoli (BA) [SY466179] Via Vittorio Veneto, 327, 70043 Monopoli BA, Italia Casa di abitazione su due livelli composta, al piano terra, da ingresso-soggiorno con angolo cottura, disimpegno, due vani, doppi servizi, annesse verand […]
